新潟県小千谷市東栄1丁目1098番2 投資物件・その他 39,800,000円の物件情報

小千谷市内 人気レストラン+5LDK住宅 職住接近

物件名/所在地 詳細 価格
表面利回り
小千谷市内 人気レストラン+5LDK住宅
新潟県小千谷市東栄1丁目1098番2
  • 土地面積
    :481.99㎡ /145.8坪
  • 建ぺい率
    :60%
  • 容積率
    :200%
39,800,000
-
  • 小千谷市内 人気レストラン+5LDK住宅
    ふどうさんの相談所 (ライフデザイン合同会社 イオン長岡店)
  • この物件を問い合わせる/無料
  • TEL: 0258-94-4370 0258-94-4370

物件画像

外観
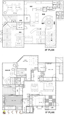
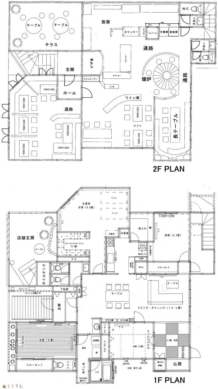
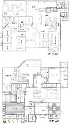
間取り
物件画像
※画像クリックで拡大表示
店内写真
物件画像
※画像クリックで拡大表示
1F 2F PLAN
詳細画像
物件画像
エントランス1
物件画像
外観1
物件画像
エントランス2
物件画像
エントランス脇テラス席
物件画像
エントランスから店内
物件画像
暖炉席
物件画像
内観1
物件画像
内観2
物件画像
内観3
物件画像
ピザ窯
物件画像
インテリア
物件画像
厨房
物件画像
特別席
物件画像
館名板
物件画像
住居部分 リビング1
物件画像
住居部分 リビング2
物件画像
住居部分 キッチン
物件画像
住居部分 浴室
物件画像
外部 駐車場
物件画像
地図画像
動画


物件概要

物件コード 00039-200218
物件名 小千谷市内 人気レストラン+5LDK住宅
交通 駅:上越線 小千谷駅から徒歩7分、バス:小千谷車庫前から徒歩3分
物件所在地 新潟県小千谷市東栄1丁目1098番2
物件種別 投資物件・その他
物件区分 その他
構造 木造 階建 地上2階建
建ぺい率/容積率 60%/200%
建物面積 1階 60.22㎡/ 2階 77.11㎡/ 計 137.33㎡ /41.54坪
土地面積 481.99㎡ /145.8坪
築年月 1986年7月(築39年)
入居(引き渡し)時期 相談
用途地域 第1種中高層住居専用地域 地目 宅地
都市計画 非線引き都市計画区域 学校区 東小千谷小学校(171m)・東小千谷中学校(469m)
形状 間口 19m × 奥行 40m 道路 小千谷市道
私道 - その他の制限 -
  • 小千谷市内 人気レストラン+5LDK住宅
    ふどうさんの相談所 (ライフデザイン合同会社 イオン長岡店)
  • この物件を問い合わせる/無料
  • TEL: 0258-94-4370 0258-94-4370

物件詳細情報

所在階/階数 - 号室 -
販売価格 39,800,000円 方位 -
表面利回り(満室想定時) - 満室想定年収 - (想定月収: - )
現行利回り - 現行年間年収 -
住戸数 -
間取り 1階住居部分 5LDK、 2階店舗部分
専有面積 - バルコニー面積 -
その他面積 - 駐車場 車13台分
管理費 - 修繕積立金 -
現況 居住中
仲介手数料 1,379,400円
利用制限 -
設備 駐車場(近隣含む)、事業向け
取引態様 専任
備考 小千谷市内の繁盛店、イタリアンレストラン+1階住居、
取り扱い会社

ふどうさんの相談所 (ライフデザイン合同会社 イオン長岡店)

新潟県長岡市古正寺1-249-1イオン長岡店3F

情報登録日 2026/03/15 次回更新予定日 2026/05/16
取引条件有効期限 2026/04/30
  • 小千谷市内 人気レストラン+5LDK住宅
    ふどうさんの相談所 (ライフデザイン合同会社 イオン長岡店)
  • この物件を問い合わせる/無料
  • TEL: 0258-94-4370 0258-94-4370

この物件の地図・周辺情報・行政情報

この物件の周辺情報・行政情報を詳しく見る
【周辺情報】
物件の近くにあるコンビニや銀行・学校など、アイコン付のマップで詳しく表示できます!
【行政情報】
水道料や下水道料・ガス料金など、暮らしに関係のある情報を表示しています。

担当取扱い店舗情報

取扱い店舗画像
ふどうさんの相談所 (ライフデザイン合同会社 イオン長岡店)
TEL: 0258-94-4370
所在地: 新潟県長岡市古正寺1-249-1イオン長岡店3F
交通: 長岡駅
営業時間: 10:00~20:00/定休日:年末年始・特別日はお休みいたします
免許番号: 新潟県知事(3)第5090号
所属団体名: 全日本不動産協会 新潟県本部
取引態様: 専任
ホームページ: http://life-dn.com