新潟県柏崎市四谷2丁目2-11 投資物件・その他 33,000,000円の物件情報

エレベーター、配膳用昇降機あり

物件名/所在地 詳細 価格
表面利回り
四谷2丁目 割烹・料亭向き
新潟県柏崎市四谷2丁目2-11
  • 土地面積
    :654.54㎡ /197.99坪
  • 建ぺい率
    :60%
  • 容積率
    :200%
33,000,000
-
  • 四谷2丁目 割烹・料亭向き
    株式会社 ai-will
  • この物件を問い合わせる/無料
  • TEL: 0257-35-5370 0257-35-5370

物件画像

外観
間取り
物件画像
※画像クリックで拡大表示
外観
物件画像
※画像クリックで拡大表示
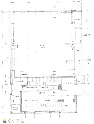
1階平面図
詳細画像
物件画像
玄関
物件画像
玄関
物件画像
厨房
物件画像
2階旧館宴会場
物件画像
2階旧館大広間
物件画像
3階旧館宴会場
物件画像
3階旧館大広間
物件画像
4階旧館大広間
物件画像
4階旧館大広間
物件画像
新館2階個室①
物件画像
新館2階個室②
物件画像
新館2階個室③
物件画像
新館2階トイレ
物件画像
旧館女子トイレ
物件画像
旧館男子トイレ
物件画像
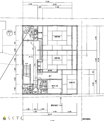
新館2階平面図
物件画像
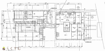
旧館2階大広間平面図
物件画像
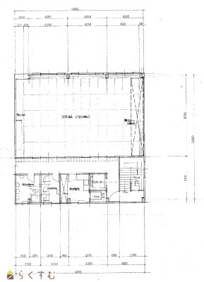
旧館3階大広間平面図
物件画像
旧館4階大広間平面図
物件画像
印刷用地図


物件概要

手前が2階建、奥が4階建て 渡り廊下で繋がっています
物件コード 00037-200171
物件名 四谷2丁目 割烹・料亭向き
交通 駅:越後線 東柏崎駅から徒歩9分、バス:四谷から徒歩2分
物件所在地 新潟県柏崎市四谷2丁目2-11
物件種別 投資物件・その他
物件区分 その他
構造 鉄骨 階建 地上4階建
建ぺい率/容積率 60%/200%
建物面積 1階 457.66㎡/ 2階 392.74㎡/ 3階 197.23㎡/ 4階 186.32㎡/ 計 1,233.95㎡ /373.26坪
土地面積 654.54㎡ /197.99坪
築年月 1967年1月(築58年)
入居(引き渡し)時期 相談
用途地域 第1種住居地域 地目 宅地  (現状:宅地)
都市計画 非線引き都市計画区域 学校区 比角小学校(232m)・第二中学校(247m)
形状 - 道路 北側県道
私道 - その他の制限 -
  • 四谷2丁目 割烹・料亭向き
    株式会社 ai-will
  • この物件を問い合わせる/無料
  • TEL: 0257-35-5370 0257-35-5370

物件詳細情報

所在階/階数 - 号室 -
販売価格 33,000,000円 方位 -
表面利回り(満室想定時) - 満室想定年収 - (想定月収: - )
現行利回り - 現行年間年収 -
住戸数 -
間取り -
専有面積 - バルコニー面積 -
その他面積 - 駐車場 4~5台可能
管理費 - 修繕積立金 -
現況 指定なし
仲介手数料 1,155,000円
利用制限 -
設備 エレベーター、駐車場(近隣含む)、公営水道、下水道、事業向け
取引態様 一般
備考 築年月は目安です。  
新館2階建、旧館4階建て鉄骨造
取り扱い会社

株式会社 ai-will

新潟県柏崎市田中10-31

情報登録日 2025/07/12 次回更新予定日 2025/12/20
取引条件有効期限 2025/12/31
  • 四谷2丁目 割烹・料亭向き
    株式会社 ai-will
  • この物件を問い合わせる/無料
  • TEL: 0257-35-5370 0257-35-5370

この物件の地図・周辺情報・行政情報

この物件の周辺情報・行政情報を詳しく見る
【周辺情報】
物件の近くにあるコンビニや銀行・学校など、アイコン付のマップで詳しく表示できます!
【行政情報】
水道料や下水道料・ガス料金など、暮らしに関係のある情報を表示しています。
セブン-イレブン 柏崎四谷3丁目店(コンビニ)まで420m
クスリのアオキ 柏崎中央店(ドラッグストア)まで570m
柏崎信用金庫 四谷支店(銀行)まで70m
大光銀行 柏崎南支店(銀行)まで520m
柏崎四谷郵便局(郵便局)まで70m

※カメラのアイコンがある場合は、マウスをポイントするとその施設の画像がご覧いただけます。


担当取扱い店舗情報

取扱い店舗画像
株式会社 ai-will
TEL: 0257-35-5370
所在地: 新潟県柏崎市田中10-31
交通: 国道8号線よりすぐ
営業時間: 平日9:00~18:00土日祝10:00~16:0/定休日:当社規定 (お盆・年末年始・GW)
免許番号: 新潟県知事(4)4821号
所属団体名: 新潟県宅地建物取引協会 柏崎支部
取引態様: 一般
ホームページ: http://www.ai-will.co.jp/