新潟県長岡市寺泊上田町8204 中古一戸建て 5DK 1,500,000円の物件情報

寺泊中心部高台の閑静な住宅街  海まで徒歩約5分  5SDK  土地建物総額150万円

物件名/所在地 詳細 価格
寺泊上田町 中古住宅
新潟県長岡市寺泊上田町8204
  • 土地面積
    :89.25㎡ /26.99坪
  • 建物面積
    :109.58㎡ /33.14坪
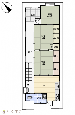
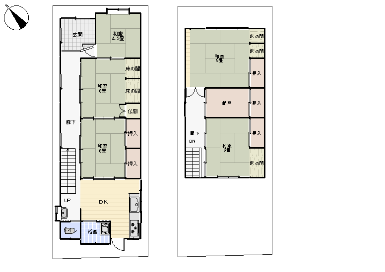
  • 間取り
    :5DK
  • 築年月
    :1960年8月
1,500,000
  • 寺泊上田町 中古住宅
    株式会社 エヌ・アール・ケー総合企画
  • この物件を問い合わせる/無料
  • TEL: 0258-41-5336 0258-41-5336

物件画像

外観
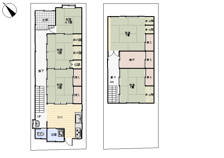
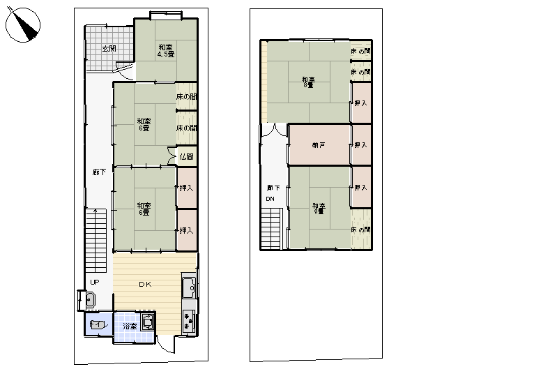
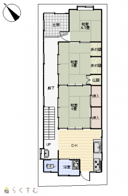
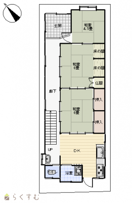
間取り
物件画像
※画像クリックで拡大表示
外観
物件画像
※画像クリックで拡大表示
間取図
詳細画像
物件画像
前面道路
物件画像
1F
物件画像
2F


物件概要

物件コード 00024-200453
物件名 寺泊上田町 中古住宅
交通 駅:越後線 寺泊駅から徒歩65分、バス:上田町から徒歩3分
物件所在地 新潟県長岡市寺泊上田町8204
物件種別 中古一戸建て
構造 木造 階建 地上2階建
建ぺい率/容積率 -
建物面積 1階 65.63㎡/ 2階 43.95㎡/ 計 109.58㎡ /33.14坪
土地面積 89.25㎡ /26.99坪
築年月 1960年8月(築65年)
入居(引き渡し)時期 随時入居(引き渡し)可
用途地域 無指定 地目 宅地
都市計画 都市計画区域外 学校区 寺泊小学校(236m)・寺泊中学校(2,246m)
形状 - 道路 市道2.7m
私道 - その他の制限 -
  • 寺泊上田町 中古住宅
    株式会社 エヌ・アール・ケー総合企画
  • この物件を問い合わせる/無料
  • TEL: 0258-41-5336 0258-41-5336

物件詳細情報

所在階/階数 - 号室 -
販売価格 1,500,000円 方位 指定なし
間取り 5DK (和室:4.5畳、6畳、6畳、8畳、8畳)
DK6S3
駐車場なし、車の乗入れはできません。
専有面積 - バルコニー面積 -
その他面積 - 駐車場 -
管理費 - 修繕積立金 -
現況 空家
仲介手数料 330,000円
利用制限 -
設備 日当り良好、閑静な住宅街、即引き渡し可能
取引態様 専任
備考 下水公共桝有り、未接続。接続時受益者負担金15万円賦課。  土砂災害警戒区域等の指定あり。  物件前への車の進入は不可。  内見をご希望の方は事前にお電話かメールでお申し出ください。
取り扱い会社

株式会社 エヌ・アール・ケー総合企画

新潟県長岡市与板町与板119番地

情報登録日 2026/04/16 次回更新予定日 2026/05/16
取引条件有効期限 2030/09/30
  • 寺泊上田町 中古住宅
    株式会社 エヌ・アール・ケー総合企画
  • この物件を問い合わせる/無料
  • TEL: 0258-41-5336 0258-41-5336

この物件の地図・周辺情報・行政情報

この物件の周辺情報・行政情報を詳しく見る
【周辺情報】
物件の近くにあるコンビニや銀行・学校など、アイコン付のマップで詳しく表示できます!
【行政情報】
水道料や下水道料・ガス料金など、暮らしに関係のある情報を表示しています。

担当取扱い店舗情報

取扱い店舗画像
株式会社 エヌ・アール・ケー総合企画
TEL: 0258-41-5336
所在地: 新潟県長岡市与板町与板119番地
交通:
営業時間: 8:30~17:30/定休日:土日・祝祭日 (電話対応しております)
免許番号: 新潟県知事(5)第4750号
所属団体名: 新潟県宅地建物取引業協会 長岡支部
取引態様: 専任
ホームページ: http://www.nrk-sogo.jp