新潟県長岡市陽光台4丁目1379番地164 新築一戸建て 2LDK 45,000,000円の物件情報

2台分のインナーガレージと2つの坪庭のある邸宅です。 広いバルコニーは贅沢なひとときを過ごせる特別な空間です。

物件名/所在地 詳細 価格
【未入居】 丘陵公園モデルハウス
新潟県長岡市陽光台4丁目1379番地164
  • 土地面積
    :205.22㎡ /62.07坪
  • 建物面積
    :107.64㎡ /32.56坪
  • 間取り
    :2LDK
  • 築年月
    :2024年12月
45,000,000
  • 【未入居】 丘陵公園モデルハウス
    株式会社 島岡不動産企画
  • この物件を問い合わせる/無料
  • TEL: 0258-39-6030 0258-39-6030

物件画像

外観
間取り
物件画像
※画像クリックで拡大表示
外観
物件画像
※画像クリックで拡大表示
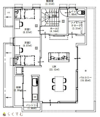
平面図(1階)
詳細画像
物件画像
リビング
物件画像
キッチン
物件画像
寝室
物件画像
洗面所
物件画像
収納
物件画像
バルコニー
物件画像
バルコニー
物件画像
パントリー
物件画像
洗面所
物件画像
洗面所
物件画像
インナーガレージ
物件画像
外観
物件画像
平面図(2階)


物件概要

物件コード 00008-200265
物件名 【未入居】 丘陵公園モデルハウス
交通 駅:信越線 来迎寺駅から徒歩100分、バス:陽光台3丁目から徒歩7分
物件所在地 新潟県長岡市陽光台4丁目1379番地164
物件種別 新築一戸建て
構造 木造 階建 地上2階建
建ぺい率/容積率 60%/200%
建物面積 1階 41.4㎡/ 2階 66.24㎡/ 計 107.64㎡ /32.56坪
土地面積 205.22㎡ /62.07坪
築年月 2024年12月(築1年)
入居(引き渡し)時期 随時入居(引き渡し)可
用途地域 第1種中高層住居専用地域 地目 宅地  (現状:宅地)
都市計画 市街化区域 学校区 青葉台小学校(1,350m)・青葉台中学校(1,941m)
形状 間口 14.64m × 奥行 14.01m 道路 東側 長岡市道 幅員約8m(消雪道路)
私道 - その他の制限 陽光台地区地区計画、第二種高度地区、建築基準法第22条指定区域
  • 【未入居】 丘陵公園モデルハウス
    株式会社 島岡不動産企画
  • この物件を問い合わせる/無料
  • TEL: 0258-39-6030 0258-39-6030

物件詳細情報

所在階/階数 - 号室 -
販売価格 45,000,000円 方位 -
間取り 2LDK (洋室:6、9)
LDK20
洋室(9帖)を間仕切り壁で3LDKに変更可能です(工事費は買主様負担)
専有面積 - バルコニー面積 -
その他面積 19.05㎡ /5.76坪  バルコニー 駐車場 -
管理費 - 修繕積立金 -
現況 空家
仲介手数料 1,433,850円
利用制限 -
設備 高台に立地、整形地、前面道路6m以上、日当り良好、閑静な住宅街、耐震構造、建物確認・完了検査済証あり、LDK15畳以上、全室フローリング、駐車場3台以上、庭あり、TVインターホン、複層ガラス、システムキッチン、IHクッキングヒーター、食器洗浄乾燥機、3口コンロ、追いだき機能付き、浴室暖房乾燥機、バス1坪以上、温水洗浄便座、シャワー付き洗面台、エアコン、24時間換気システム、省エネ給湯、都市ガス、上水道、下水道、電気、ウォークインクローゼット、シューズBOX、LAN端子、照明器具付き、即引き渡し可能
取引態様 一般
備考 設置されている家具家電はご希望があればお譲り致します。
建物未登記のため登記が必要です。(買主様負担)
KEEP:S様施工(株式会社KENYOU様)    
消雪組合費・町内会費が別途必要です。
取り扱い会社

株式会社 島岡不動産企画

新潟県長岡市西新町1-8-11

情報登録日 2026/04/13 次回更新予定日 2026/05/15
取引条件有効期限 2025/10/31
  • 【未入居】 丘陵公園モデルハウス
    株式会社 島岡不動産企画
  • この物件を問い合わせる/無料
  • TEL: 0258-39-6030 0258-39-6030

この物件の地図・周辺情報・行政情報

この物件の周辺情報・行政情報を詳しく見る
【周辺情報】
物件の近くにあるコンビニや銀行・学校など、アイコン付のマップで詳しく表示できます!
【行政情報】
水道料や下水道料・ガス料金など、暮らしに関係のある情報を表示しています。

担当取扱い店舗情報

取扱い店舗画像
株式会社 島岡不動産企画
TEL: 0258-39-6030
所在地: 新潟県長岡市西新町1-8-11
交通: 「新町小学校前」バス停徒歩1分
営業時間: 9:00~18:30/定休日:日曜・祭日
免許番号: 新潟県知事(4)4829号
所属団体名: 公益社団法人 新潟県宅地建物取引業協会
取引態様: 一般
ホームページ: http://www.shimaoka.co.jp