| 消雪パイプあり・ミニバンも駐車可能です。 | |||
| 物件コード | 00320-100006 | ||
|---|---|---|---|
| 物件名 | 【賃貸】東新町1丁目 駐車場 NO.5 | ||
| 交通 | 駅:信越線 北長岡駅から徒歩17分、バス:昭和通りから徒歩4分 | ||
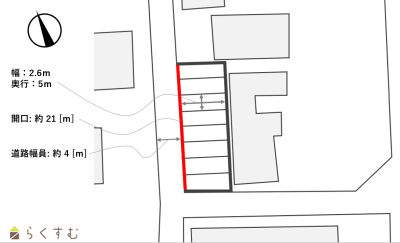
| 所在地 | 新潟県長岡市東新町1丁目2-7 | ||
| 物件種別 | 駐車場 | ||
| 総戸数 | - | ||
| 構造 | - | 階建 | - |
| 所在階/階数 | - | 号室 | - |
| 面積 | - | 方位 | - |
| 間取り |
|
||
| 賃料 | 0.8万円/月
|
管理費 | - |
| 礼金 | - | 敷金 | - |
| ほか初期費用 | - | その他諸費用 | 振込手数料:880円 ※最大の金額です。 |
| 更新料 | - | 火災(家財)保険 | - |
| 共益費 | - | 町内費 | - |
| 駐車場 | - | バイク料金 | - |
| 鍵交換費 | - | 清掃料 | - |
| 振込手数料 |
880円
※最大の金額です。 |
||
| 更新事務手数料 | - | ||
| 保証区分 |
緊急連絡先のみ |
||
| 保証会社 |
区分:指定なし - |
||
| 連帯保証人 |
区分:不要 - |
||
| 仲介手数料 |
8,000円
|
||
| 築年月 | - | ||
| 利用制限 | - | ||
| 学校区 | 新町小学校(478m)・北中学校(1,598m) | ||
| 設備 | 即利用可能、融雪井戸あり | ||
| 入居時期 | 即入居可 | ||
| 取引態様 | 仲介 | ||
| 備考 | 駐車場所はNO.5になります。 | ||
| 手数料負担割合/配分割合 | 貸主:-% 借主:100% / 元付:100% 客付:-% | ||
| 情報登録日 | 2025/11/25 | 次回更新予定日 | 2025/12/22 |
|
|
|
|
| TEL: | 0258-35-2220 |
|---|---|
| 所在地: | 新潟県長岡市新町1-1-2 |
| 交通: | 長岡駅 |
| 営業時間: | 月~金:午前8時00分~午後6時 土日:午前10時00分~午後6時 /定休日:オンラインサービス:午前9時30分~午後9時 |
| 免許番号: | 新潟県知事(1)第5629号 |
| 所属団体名: | 公社 新潟県宅地建物取引協会 新潟支部 |
| 取引態様: | 仲介 |