| 高田駅から徒歩5分の立地。 2階をワンフロアで貸し出した場合の価格です。(約60坪ほど) 分割での貸し出しもご相談ください。 トイレと流し台は共同となります。 | |||
| 物件コード | 00263-100096 | ||
|---|---|---|---|
| 物件名 | 高田館ビル(2階一括貸し) | ||
| 交通 | 駅:高田から徒歩5分 | ||
| 所在地 | 新潟県上越市本町6-1-23 | ||
| 物件種別 | 事務所 | ||
| 総戸数 | - | ||
| 構造 | 鉄筋コン | 階建 | 地上4階建 |
| 所在階/階数 | 2階/4階 | 号室 | - |
| 面積 | 283.94㎡ (85.89坪) | 方位 | - |
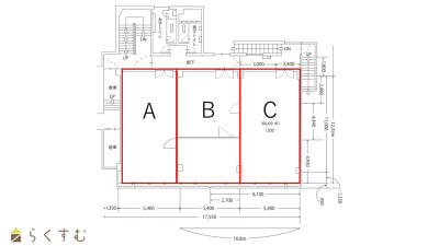
| 間取り |
|
||
| 賃料 | 19.8万円/月
|
管理費 | - |
| 礼金 | - | 敷金 | - |
| ほか初期費用 | - | その他諸費用 | - |
| 更新料 | - | 火災(家財)保険 | 加入要 |
| 共益費 | - | 町内費 | 直接支払い |
| 駐車場 | 3台可能。追加分ご相談ください。消雪設備あり | バイク料金 | - |
| 鍵交換費 | - | 清掃料 | - |
| 更新事務手数料 |
22,000円
|
||
| 保証区分 |
連帯保証人+保証会社 |
||
| 保証会社 |
区分:加入要 保証会社名:日本セーフティ 初回保証料:賃料等合計の100%、継続保証料:賃料等合計の0.8%。※最低保証料あり |
||
| 家賃保証金 |
198,000円
|
||
| 連帯保証人 |
区分:要 - |
||
| 仲介手数料 |
198,000円
|
||
| 築年月 | 不詳 | ||
| 利用制限 | - | ||
| 学校区 | 大町小学校(403m) | ||
| 設備 | 2階以上、融雪設備あり、駐車場あり | ||
| 入居時期 | 相談 | ||
| 取引態様 | 仲介 | ||
| 備考 | 1階は株式会社新潟ビルサービス 上越営業所 町内会費:直接支払い 駐車場:建物前に3台可能。追加分ご相談ください。消雪設備あり。 テナント保険:加入要 保証会社:日本セーフティー株式会社 (初回保証料:賃料等合計の100%、継続保証料:賃料等合計の0.8%。※最低保証料あり ) ◆店舗・事務所はテナントショップ上越でお探しください!◆ |
||
| 手数料負担割合/配分割合 | 貸主:-% 借主:100% / 元付:50% 客付:50% | ||
| 情報登録日 | 2025/10/17 | 次回更新予定日 | 2026/05/18 |
|
|
|
|
|
|
| TEL: | 025-544-6015 |
|---|---|
| 所在地: | 新潟県上越市春日新田1-20-8 |
| 交通: | |
| 営業時間: | 9:00~18:00/定休日:水・日・祝 |
| 免許番号: | 新潟県知事(10)第3031号 |
| 所属団体名: | 公社 新潟県宅地建物取引協会 上越支部 |
| 取引態様: | 仲介 |