| 物件コード | 00205-100226 | ||
|---|---|---|---|
| 物件名 | カーサインフォミックス | ||
| 交通 | 駅:信越線 柏崎駅から徒歩12分、バス:鏡町から徒歩2分 | ||
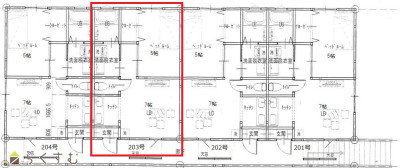
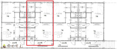
| 所在地 | 新潟県柏崎市錦町5-14カーサインフォミックス203 | ||
| 物件種別 | アパート・マンション・一戸建て | ||
| 総戸数 | 4戸 | ||
| 構造 | 木造 | 階建 | 地上2階建 |
| 所在階/階数 | 2階/2階 | 号室 | 203号室 |
| 面積 | 30.98㎡ (9.37坪) | 方位 | 指定なし |
| 間取り | 1LDK (洋室:5)
LDK7 |
||
| 賃料 | 5.6万円/月
|
管理費 | - |
| 礼金 | -
|
敷金 | 1ヶ月
|
| ほか初期費用 | - | その他諸費用 | - |
| 更新料 |
11,000円
内消費税10% |
火災(家財)保険 |
16,000円
2年額 |
| 共益費 | - | 町内費 |
700円
|
| 駐車場 |
1台無料 |
バイク料金 | - |
| 鍵交換費 | - | 清掃料 | - |
| 月額保証料 |
800円
|
||
| 更新事務手数料 | - | ||
| 保証区分 |
保証会社のみ |
||
| 保証会社 |
区分:加入要 保証会社名:日本セーフティ - |
||
| 家賃保証金 |
28,350円
|
||
| 連帯保証人 |
区分:不要 - |
||
| 仲介手数料 |
61,600円
|
||
| 築年月 | 2016年5月(築10年) | ||
| 利用制限 | 法人:可、学生:可、単身者:可、楽器:不可、事務所利用:不可 | ||
| 学校区 | 柏崎小学校(866m)・第一中学校(1,021m) | ||
| 設備 | バス停近く、公園そば、上階なし、駐車場1台無料、IHクッキングヒーター、バストイレ別、追いだき機能付き、洗面所独立、エアコン、都市ガス、公営水道、下水、全居室フローリング、洗濯機置場 室内、脱衣所、クロゼット、TVモニター付きインターホン、インターネット無料、インターネット 光、即入居可、保証会社利用可能、礼金不要、一人暮らし・学生向け、予約可、保証会社要加入 | ||
| 入居時期 | 2026年5月中旬 | ||
| 取引態様 | 仲介 | ||
| 備考 | インターネット無料、近隣駐車場1台分無料! | ||
| 手数料負担割合/配分割合 | 貸主:-% 借主:-% / 元付:-% 客付:-% | ||
| 情報登録日 | 2026/03/13 | 次回更新予定日 | 2026/05/18 |
|
|
|
|
|
|
| TEL: | 0257-22-1422 |
|---|---|
| 所在地: | 新潟県柏崎市錦町8-29 |
| 交通: | 駅前公園、向かい♪ |
| 営業時間: | 9:00~17:30 土曜日10:00~15:00/定休日:日曜・祝日 |
| 免許番号: | 新潟県知事(8)第3675号 |
| 所属団体名: | 公社 新潟県宅地建物取引業協会 柏崎支部 |
| 取引態様: | 仲介 |