| 【フリーレントあり】シェアメイトと適度に距離感を保ちながら暮らせるシェアハウス。生活に必要な家電や調理器具などが揃っているため、気軽に新生活がスタートできます。 | |||
| 物件コード | 00192-100011 | ||
|---|---|---|---|
| 物件名 | コモンズ中沢(シェアハウス) | ||
| 交通 | 駅:信越線 長岡駅から徒歩29分、バス:中沢三叉路から徒歩2分 | ||
| 所在地 | 新潟県長岡市中沢3丁目352-8 | ||
| 物件種別 | アパート・マンション・一戸建て | ||
| 総戸数 | - | ||
| 構造 | 軽量鉄骨 | 階建 | 地上3階建 |
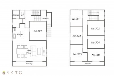
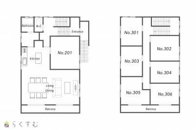
| 所在階/階数 | 2階/3階 | 号室 | 201号室 |
| 面積 | 9.3㎡ (2.81坪) | 方位 | 指定なし |
| 間取り | 1R
専有面積は個室の面積です。シェアハウスのため個室の他に共用のLDK、風呂、トイレがあります。 |
||
| 賃料 | 2.2万円/月
|
管理費 | - |
| 礼金 | -
|
敷金 | - |
| ほか初期費用 | - | その他諸費用 | - |
| 更新料 | - | 火災(家財)保険 | - |
| 共益費 |
15,000円
|
町内費 | - |
| 駐車場 | - | バイク料金 | - |
| 鍵交換費 | - | 清掃料 | - |
| 更新事務手数料 | - | ||
| 保証区分 |
連帯保証人のみ |
||
| 保証会社 |
区分:指定なし - |
||
| 連帯保証人 |
区分:要 - |
||
| 仲介手数料 | - | ||
| 築年月 | 1980年1月(築46年) | ||
| 利用制限 | 学生:可、単身者:可、ペット:不可、事務所利用:不可 | ||
| 学校区 | 栖吉小学校(727m)・栖吉中学校(882m) | ||
| 設備 | バス停近く、日当り良好、1階高床式、上階なし、倉庫、タイヤ置き場、敷地内ゴミ置き場、24時間ゴミ出し可、カーポートあり、駐輪場あり、バイク置き場、駐車場1台無料、駐車場 礼金なし、駐車場 敷金なし、2口コンロ、ガスコンロ 設置済み、バストイレ別、ユニットバス、暖房便座、エアコン、全室エアコン、都市ガス、バルコニー、洗濯機置場 室内、脱衣所、各居室照明、インターネット接続可、即入居可、仲介手数料不要、礼金不要、敷金・礼金不要、フリーレント(詳細は備考欄)、学生向け、一人暮らし・学生向け、家電付き、家具付き、長岡大学生におすすめ | ||
| 入居時期 | 4月から入居可 | ||
| 取引態様 | 仲介 | ||
| 備考 | ・バイク、自転車置き場あり。 ・共益費には、水道/電気/ガス/インターネット/日用消耗品/調味料/共用部の定期的な清掃などが含まれます。 ・4月から入居可(入居にあたっては、簡単な面談があります。) ・仲介手数料なし(貸主負担) 現在の空き部屋と賃料は以下の通りです。 201:22,000円/月 9.3㎡(6畳) <フリーレント行っています> 新規入居時の際に一定期間、家賃が0円となります。何かと出費のかさむ新生活のタイミング、ぜひフリーレントをご利用ください。 ▼誰でも適用可能 ・フリーレント期間:1ヵ月 条件:入居期間1年以上 ▼学生限定 ・フリーレント期間:2.5ヵ月 条件:入居期間2年以上 ・フリーレント期間:1.5ヵ月 条件:入居期間1年以上 ※フリーレント適用期間も共益費は免除されませんのでご注意ください。 |
||
| 手数料負担割合/配分割合 | 貸主:-% 借主:-% / 元付:-% 客付:-% | ||
| 情報登録日 | 2025/04/10 | 次回更新予定日 | 2026/05/18 |
|
|
|
|
|
|
| TEL: | 0258-84-7781 |
|---|---|
| 所在地: | 新潟県長岡市中島3-8-5 |
| 交通: | 長岡駅 |
| 営業時間: | 8:00~17:00/定休日:日曜、祝日、第2・4土曜 |
| 免許番号: | 新潟県知事(5)第4552号 |
| 所属団体名: | 公社 新潟県宅地建物取引協会 長岡支部 |
| 取引態様: | 仲介 |