| 物件コード | 00178-100226 | ||
|---|---|---|---|
| 物件名 | 東本町3丁目7-25-2階 | ||
| 交通 | 駅:越後線 柏崎駅から徒歩16分、バス:東北電力前から徒歩5分 | ||
| 所在地 | 新潟県柏崎市東本町3丁目7-252階 | ||
| 物件種別 | アパート・マンション・一戸建て | ||
| 総戸数 | 2戸 | ||
| 構造 | 木造 | 階建 | 地上2階建 |
| 所在階/階数 | 2階/2階 | 号室 | - |
| 面積 | 69.32㎡ (20.96坪) | 方位 | 南 |
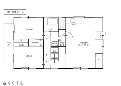
| 間取り | 2LDK (和室:6畳) (洋室:6)
LDK12 |
||
| 賃料 | 4.5万円/月
|
管理費 | - |
| 礼金 | - | 敷金 | 1ヶ月
|
| ほか初期費用 | - | その他諸費用 | - |
| 更新料 | - | 火災(家財)保険 |
18,000円
|
| 共益費 | - | 町内費 | 別途 |
| 駐車場 | 1台含む | バイク料金 | - |
| 鍵交換費 | - | 清掃料 | - |
| 更新事務手数料 | - | ||
| 保証区分 |
連帯保証人のみ |
||
| 保証会社 |
区分:指定なし - |
||
| 連帯保証人 |
区分:要 - |
||
| 仲介手数料 |
49,500円
|
||
| 築年月 | 1978年12月(築47年) | ||
| 利用制限 | 学生:不可、ペット:不可、楽器:不可、事務所利用:不可、ルームシェア:不可 | ||
| 学校区 | 比角小学校(606m)・第二中学校(779m) | ||
| 設備 | バス停近く、最上階、駐車場1台無料、バストイレ別、追いだき機能付き、暖房便座、洗面所独立、エアコン、都市ガス、バルコニー、洗濯機置場 室内、押入、シューズBOX、各居室照明 | ||
| 入居時期 | 即入居可 | ||
| 取引態様 | 仲介 | ||
| 備考 | - | ||
| 手数料負担割合/配分割合 | 貸主:-% 借主:100% / 元付:50% 客付:50% | ||
| 情報登録日 | 2025/11/18 | 次回更新予定日 | 2025/12/31 |
|
|
|
|
| TEL: | 0257-41-5077 |
|---|---|
| 所在地: | 新潟県柏崎市西港町4番19号 |
| 交通: | 柏崎駅 |
| 営業時間: | 10:00~18:00土日は10:00~17:00/定休日:水曜日・祝日 |
| 免許番号: | 新潟県知事(2)第5342号 |
| 所属団体名: | 公社 宅地建物取引協会 柏崎支部 |
| 取引態様: | 仲介 |