| 物件コード | 00091-100141 | ||
|---|---|---|---|
| 物件名 | コーポ・ラルゴ | ||
| 交通 | 駅:信越線東柏崎駅から徒歩7分、バス:諏訪町2丁目から徒歩2分 | ||
| 所在地 | 新潟県柏崎市小倉町10-6コーポ・ラルゴ201 | ||
| 物件種別 | アパート・マンション・一戸建て | ||
| 総戸数 | - | ||
| 構造 | 木造 | 階建 | 地上2階建 |
| 所在階/階数 | 2階/2階 | 号室 | 201号室 |
| 面積 | 52.89㎡ (15.99坪) | 方位 | 指定なし |
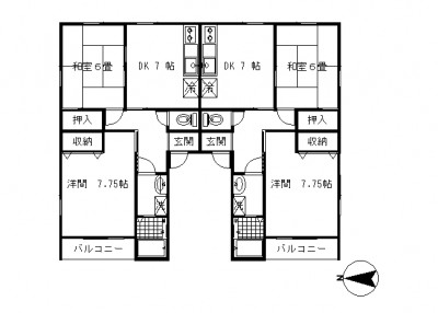
| 間取り | 2DK (和室:6畳) (洋室:7.5)
Dk7 |
||
| 賃料 | 5.2万円/月
|
管理費 | - |
| 礼金 | -
|
敷金 | 6万円
|
| ほか初期費用 | - | その他諸費用 | - |
| 更新料 | - | 火災(家財)保険 |
18,000円
18000円 |
| 共益費 |
300円
300円 |
町内費 |
1,000円
1,000円 |
| 駐車場 | 1台込み | バイク料金 | - |
| 鍵交換費 | - | 清掃料 | - |
| 更新事務手数料 |
11,000円
|
||
| 保証区分 |
保証会社のみ |
||
| 保証会社 |
区分:加入要 保証会社名:ジェイリース - |
||
| 家賃保証金 |
42,640円
|
||
| 連帯保証人 |
区分:不要 - |
||
| 仲介手数料 |
57,200円
|
||
| 築年月 | 2000年1月(築26年) | ||
| 利用制限 | 法人:可、学生:可、単身者:可、二人入居:可、シニア(60歳以上)入居:可、ペット:不可、楽器:不可 | ||
| 学校区 | 比角小学校(814m)・第二中学校(692m) | ||
| 設備 | 閑静な住宅街、最上階、タイヤ置き場、駐車場1台無料、角住居、バストイレ別、洗面所独立、都市ガス、バルコニー、洗濯機置場 室内、脱衣所、玄関収納、ウォークインクロゼット、トランクルーム、BS端子・アンテナ、TVモニター付きインターホン、各居室照明、礼金不要、フリーレント(詳細は備考欄) | ||
| 入居時期 | 相談 | ||
| 取引態様 | 仲介 | ||
| 備考 | 駐車場1台込み | ||
| 手数料負担割合/配分割合 | 貸主:-% 借主:100% / 元付:50% 客付:50% | ||
| 情報登録日 | 2025/09/22 | 次回更新予定日 | 2026/02/16 |
|
|
|
|
|
|
| TEL: | 0120-779-375 |
|---|---|
| 所在地: | 新潟県柏崎市東長浜町7-10ウエルメイド柏崎1F102 |
| 交通: | 柏崎駅 |
| 営業時間: | ①9:00~13:00②14:00~17:30/定休日:水曜日・日曜 |
| 免許番号: | 新潟県知事免許(12)第2332 号 |
| 所属団体名: | 新潟県宅地建物取引業協会 柏崎支部 |
| 取引態様: | 仲介 |