| 物件コード | 00084-100039 | ||
|---|---|---|---|
| 物件名 | ロイヤルミナミ | ||
| 交通 | 駅:信越線 柏崎駅から徒歩20分、バス:田中から徒歩2分 | ||
| 所在地 | 新潟県柏崎市田中1-5 | ||
| 物件種別 | アパート・マンション・一戸建て | ||
| 総戸数 | - | ||
| 構造 | 鉄骨 | 階建 | 地上2階建 |
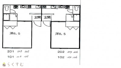
| 所在階/階数 | 2階/2階 | 号室 | 203号室 |
| 面積 | 28.35㎡ (8.57坪) | 方位 | 指定なし |
| 間取り | 1K
|
||
| 賃料 | 4.7万円/月
|
管理費 | - |
| 礼金 | -
|
敷金 | 1ヶ月
|
| ほか初期費用 | - | その他諸費用 | - |
| 更新料 | - | 火災(家財)保険 | 別途要加入 |
| 共益費 | - | 町内費 | - |
| 駐車場 |
家賃1台込み |
バイク料金 | - |
| 鍵交換費 | - | 清掃料 | - |
| 更新事務手数料 | - | ||
| 保証区分 |
連帯保証人のみ |
||
| 保証会社 |
区分:指定なし - |
||
| 連帯保証人 |
区分:要 - |
||
| 仲介手数料 |
51,700円
|
||
| 築年月 | 1996年3月(築29年) | ||
| 利用制限 | 二人入居:相談、ペット:不可、楽器:不可 | ||
| 学校区 | 枇杷島小学校(723m)・鏡が沖中学校(510m) | ||
| 設備 | 日当り良好、駐車場1台無料、バストイレ別、洗面所独立、エアコン、柏崎 大和・積水物件 | ||
| 入居時期 | 即入居可 | ||
| 取引態様 | 仲介 | ||
| 備考 | - | ||
| 手数料負担割合/配分割合 | 貸主:-% 借主:-% / 元付:-% 客付:-% | ||
| 情報登録日 | 2025/12/03 | 次回更新予定日 | 2025/12/29 |
|
|
|
|
|
|
| TEL: | 0257-23-3412 |
|---|---|
| 所在地: | 新潟県柏崎市駅前1丁目3番22号 |
| 交通: | 柏崎駅 |
| 営業時間: | 8:30~17:00/定休日:土・日・祝 |
| 免許番号: | 新潟県知事(1)第5669号 |
| 所属団体名: | 新潟県宅地建物取引業協会 柏崎支部 |
| 取引態様: | 仲介 |