| 物件コード | 00052-100156 | ||
|---|---|---|---|
| 物件名 | BIBAプラザ | ||
| 交通 | 駅:弥彦線 北三条駅から徒歩17分、バス:三条警察署から徒歩2分 | ||
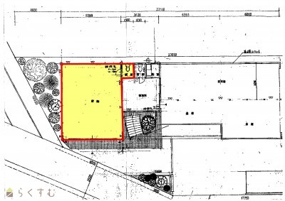
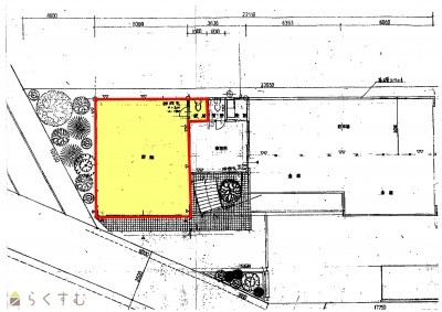
| 所在地 | 新潟県三条市林町2丁目18-24 | ||
| 物件種別 | 店舗 | ||
| 総戸数 | - | ||
| 構造 | 木造 | 階建 | 地上2階建 |
| 所在階/階数 | 1階/2階 | 号室 | - |
| 面積 | 49.58㎡ (14.99坪) | 方位 | - |
| 間取り |
|
||
| 賃料 | 14.3万円/月
|
管理費 | - |
| 礼金 | 1ヶ月
|
敷金 | 2ヶ月
|
| ほか初期費用 | - | その他諸費用 | - |
| 更新料 | - | 火災(家財)保険 | 加入必須 |
| 共益費 | - | 町内費 | - |
| 駐車場 | お客様用共用駐車場有 | バイク料金 | - |
| 鍵交換費 | - | 清掃料 | - |
| 更新事務手数料 | - | ||
| 保証区分 |
連帯保証人+保証会社 |
||
| 保証会社 |
区分:加入要 保証会社名:その他 (ジェイリース株式会社) 初回保証料:月額賃料等総額の100% 継続保証料(年):月額賃料等総額の10% |
||
| 連帯保証人 |
区分:要 - |
||
| 仲介手数料 |
143,000円
|
||
| 築年月 | 1990年3月(築36年) | ||
| 利用制限 | 事務所利用:可 | ||
| 学校区 | 一ノ木戸小学校(251m)・第二中学校(251m) | ||
| 設備 | 1階、駐車場あり | ||
| 入居時期 | 2026年5月10日以降引き渡し可能予定 | ||
| 取引態様 | 仲介 | ||
| 備考 | ※飲食店不可。 ※従業員駐車場はございません。近隣でご契約ください。 |
||
| 手数料負担割合/配分割合 | 貸主:-% 借主:100% / 元付:50% 客付:50% | ||
| 情報登録日 | 2026/03/06 | 次回更新予定日 | 2026/05/14 |
|
|
|
|
|
|
| TEL: | 0256-35-5825 |
|---|---|
| 所在地: | 新潟県三条市旭町1丁目1-19-3ユタカビル |
| 交通: | 東三条駅 |
| 営業時間: | 9:00~18:00/定休日:火曜・祭日 |
| 免許番号: | 新潟見知事(9)第3203号 |
| 所属団体名: | 新潟県宅地建物取引協会 三条支部 |
| 取引態様: | 仲介 |