| 物件コード | 00021-100647 | ||
|---|---|---|---|
| 物件名 | ファース長岡ビル | ||
| 交通 | 駅:上越新幹線 長岡駅から徒歩5分 | ||
| 所在地 | 新潟県長岡市東坂之上町2丁目1-1 | ||
| 物件種別 | 事務所 | ||
| 総戸数 | - | ||
| 構造 | 鉄骨鉄筋コン | 階建 | 地上12階地下1階建 |
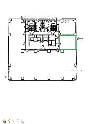
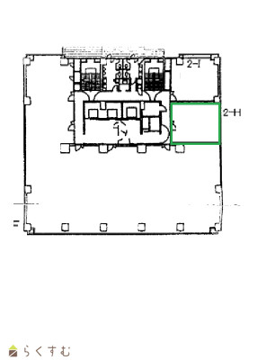
| 所在階/階数 | 2階/12階 | 号室 | H号室 |
| 面積 | 44.23㎡ (13.37坪) | 方位 | - |
| 間取り |
|
||
| 賃料 | 8.6万円/月
|
管理費 |
35,000円/月
|
| 礼金 | -
|
敷金 | 8ヶ月
|
| ほか初期費用 | - | その他諸費用 | - |
| 更新料 | - | 火災(家財)保険 | 要加入 |
| 共益費 | - | 町内費 | - |
| 駐車場 |
25,000円
機械式駐車場 |
バイク料金 | - |
| 鍵交換費 | - | 清掃料 | - |
| 更新事務手数料 | - | ||
| 保証区分 |
保証会社+緊急連絡先 |
||
| 保証会社 |
区分:加入要 保証会社名:その他 (家主指定) 初回保証料 家賃総額100%/一年毎に更新料10% |
||
| 連帯保証人 |
区分:不要 - |
||
| 仲介手数料 | - | ||
| 築年月 | 1988年3月(築37年) | ||
| 利用制限 | - | ||
| 学校区 | 阪之上小学校(628m)・東中学校(1,344m) | ||
| 設備 | 2階以上、融雪設備あり、光ファイバー、エアコン、男女トイレ別、エレベーター、給湯、駐車場あり | ||
| 入居時期 | 即入居可 | ||
| 取引態様 | 仲介 | ||
| 備考 | - | ||
| 手数料負担割合/配分割合 | 貸主:0% 借主:100% / 元付:50% 客付:50% | ||
| 情報登録日 | 2025/08/29 | 次回更新予定日 | 2025/12/22 |
|
|
|
|
| TEL: | 0258-34-2153 |
|---|---|
| 所在地: | 新潟県長岡市福住2丁目2番5号 |
| 交通: | 長岡駅徒歩5分 |
| 営業時間: | 9:00~17:30/定休日:土曜・日曜・祭日【月最終土曜営業】 |
| 免許番号: | 新潟県知事(14)第1137号 |
| 所属団体名: | 新潟県宅地建物取引業協会 長岡支部 |
| 取引態様: | 仲介 |