長岡市東新町1丁目510-107 駐車場 0.75万円の物件情報

前面道路7.7m。生活環境良好な住宅地の駐車場。

物件名
所在地
面積
間取り
所在階
築年数
方位
賃料
管理費等
共益費
敷金
保証金
礼金
種別
構造
【賃貸】サーパス東新町隣P NO.7
長岡市東新町1丁目510-107
-
-
-
-
-
0.75万円
なし
なし
なし
なし
なし
駐車場
-
  • 【賃貸】サーパス東新町隣P NO.7
    有限会社 ブライトサクセス
  • この物件を問い合わせる/無料
  • TEL: 0258-35-2220 0258-35-2220

物件画像

外観
間取り
物件画像
※画像クリックで拡大表示
現地写真
物件画像
※画像クリックで拡大表示
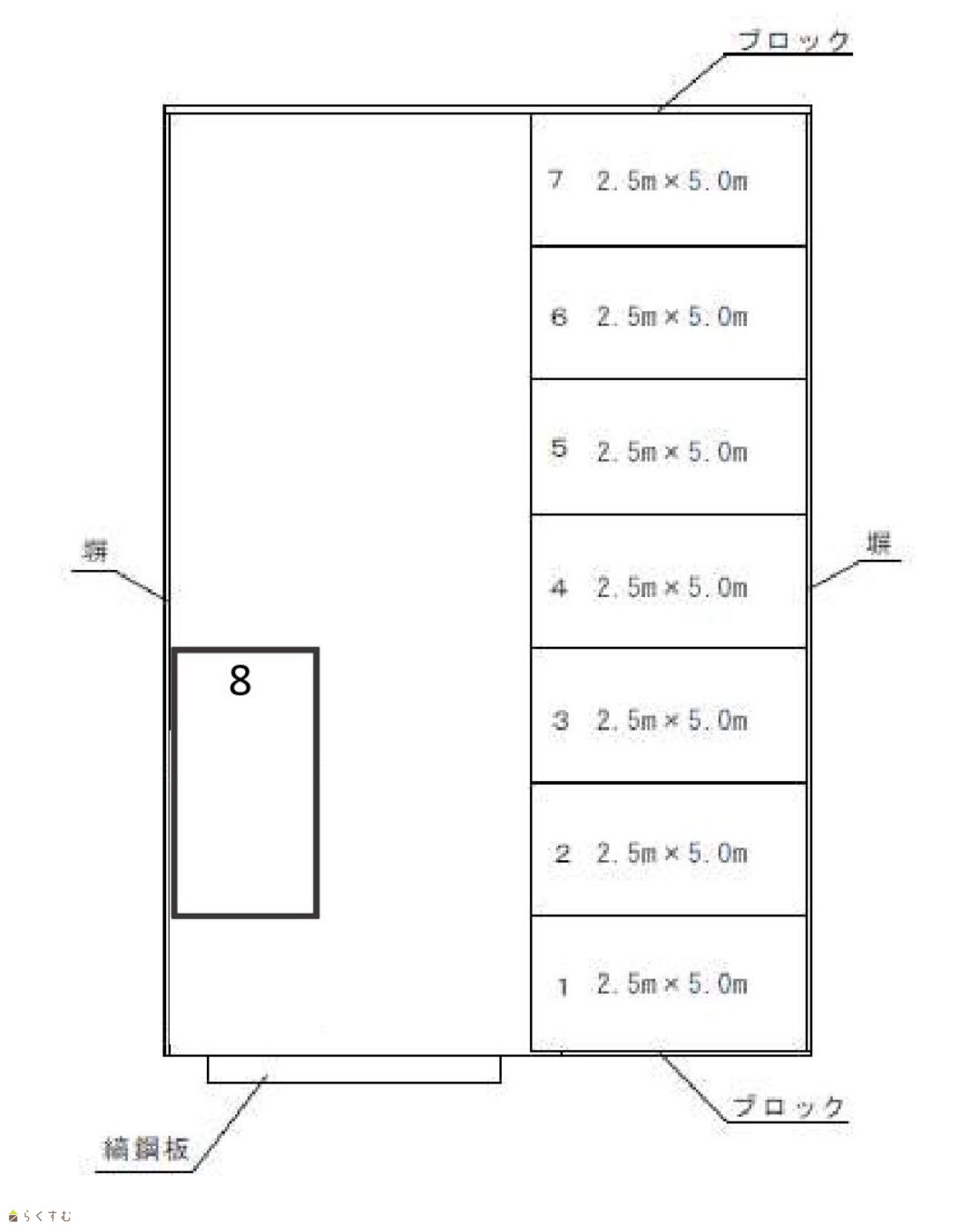
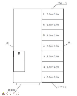
区画図
詳細画像
物件画像
現地写真
物件画像
現地写真
物件画像
現地写真
物件画像
現地写真
物件画像
現地写真
物件画像
現地写真
物件画像
前面道路
物件画像
前面道路
物件画像
8号線からの前面道路入り口
物件画像
融雪設備
物件画像
地図画像
動画


物件概要

融雪装置あり、冬でも安心してご利用いただけます。
物件コード 00320-100015
物件名 【賃貸】サーパス東新町隣P NO.7
交通 駅:信越線 北長岡駅から徒歩16分、バス:昭和通りから徒歩4分
所在地 長岡市東新町1丁目510-107
物件種別 駐車場
総戸数 -
構造 - 階建 -
所在階/階数 - 号室 -
面積 - 方位 -
間取り -
賃料 0.75万円/月
管理費 -
礼金 - 敷金 -
ほか初期費用 - その他諸費用 振込手数料:880円
※最大の金額です。
更新料 - 火災(家財)保険 -
共益費 - 町内費 -
駐車場 - バイク料金 -
鍵交換費 - 清掃料 -
振込手数料 880円
※最大の金額です。
更新事務手数料 -
保証区分 緊急連絡先のみ
保証会社 区分:指定なし
-
連帯保証人 区分:不要
-
仲介手数料 7,500円
築年月 -
利用制限 -
学校区 新町小学校(482m)・北中学校(1,594m)
設備 舗装、即利用可能
入居時期 即入居可
取引態様 仲介
備考 -
手数料負担割合/配分割合 貸主:-%   借主:100% / 元付:100%   客付:-%  
取り扱い会社

有限会社 ブライトサクセス

新潟県長岡市新町1-1-2

情報登録日 2026/04/20 次回更新予定日 2026/05/14
  • 【賃貸】サーパス東新町隣P NO.7
    有限会社 ブライトサクセス
  • この物件を問い合わせる/無料
  • TEL: 0258-35-2220 0258-35-2220

この物件の地図・周辺情報・行政情報

この物件の周辺情報・行政情報を詳しく見る
【周辺情報】
物件の近くにあるコンビニや銀行・学校など、アイコン付のマップで詳しく表示できます!
【行政情報】
水道料や下水道料・ガス料金など、暮らしに関係のある情報を表示しています。
ファミリーマート 長岡新町二丁目店(コンビニ)まで250m
ALPHAS薬局 新町店(ドラッグストア)まで230m
太田こどもとアレルギークリニック(病院)まで190m
第四北越銀行 新町支店(銀行)までm
長岡石内郵便局(郵便局)までm

※カメラのアイコンがある場合は、マウスをポイントするとその施設の画像がご覧いただけます。


担当取扱い店舗情報

取扱い店舗画像
有限会社 ブライトサクセス
TEL: 0258-35-2220
所在地: 新潟県長岡市新町1-1-2
交通: 長岡駅
営業時間: 午前10時00分~午後7時 /定休日:オンラインサービス:午前9時30分~午後9時
免許番号: 新潟県知事(1)第5629号
所属団体名: 公社 新潟県宅地建物取引協会 新潟支部
取引態様: 仲介
ホームページ: https://bright-success.net/