新潟県柏崎市城東2-1-6 一戸建て 6DK 5.5万円の物件情報

仲介手数料なし♪ 高床式で緑に囲まれた閑静な佇まい!給湯器新品入れ替済みです!

物件名
所在地
面積
間取り
所在階
築年数
方位
賃料
管理費等
共益費
敷金
保証金
礼金
種別
構造
城東O貸家
0号室
新潟県柏崎市城東2-1-6
190.55㎡
(57.64坪)
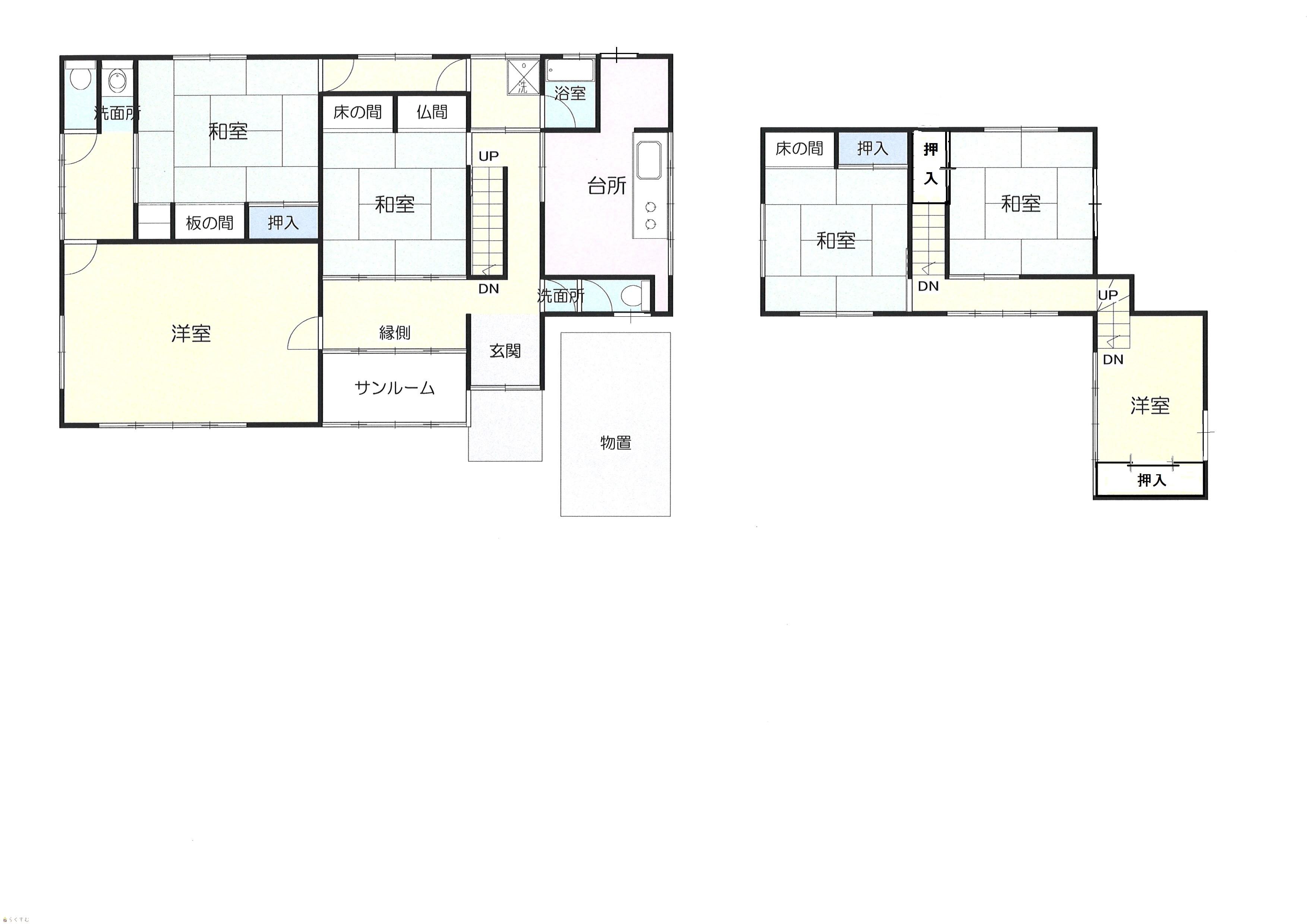
6DK
1階
43年
5.5万円
なし
なし
1.5ヶ月
なし
1.5ヶ月
アパート・マンション・一戸建て
木造
  • 城東O貸家
    有限会社ひまわりネットワーク
  • この物件を問い合わせる/無料
  • TEL: 0257-22-0851 0257-22-0851

物件画像

外観
間取り
物件画像
※画像クリックで拡大表示
外観
物件画像
※画像クリックで拡大表示
間取り図
詳細画像
物件画像
和室1
物件画像
DK
物件画像
洋室1
物件画像
廊下
物件画像
トイレ
物件画像
ユニットバス
物件画像
手洗い
物件画像
収納
物件画像
和室2
物件画像
地図画像


物件概要

物件コード 00292-100040
物件名 城東O貸家
交通 駅:信越線 柏崎駅から徒歩20分、バス:総合高校前から徒歩5分
所在地 新潟県柏崎市城東2-1-6
物件種別 アパート・マンション・一戸建て
総戸数 -
構造 木造 階建 地上2階建
所在階/階数 1階/2階 号室 -
面積 190.55㎡ /57.64坪 方位
間取り 6DK (和室:8畳、10畳、8畳、8畳) (洋室:7.5、6)
DK6
賃料 5.5万円/月
管理費 -
礼金 1.5ヶ月
敷金 1.5ヶ月
ほか初期費用 - その他諸費用 -
更新料 - 火災(家財)保険 22,000円
2年
共益費 - 町内費 別途
駐車場
1台込
バイク料金 -
鍵交換費 - 清掃料 -
更新事務手数料 -
保証区分 連帯保証人のみ
保証会社 区分:指定なし
-
連帯保証人 区分:要
-
仲介手数料 -
築年月 1982年3月(築43年)
利用制限 -
学校区 枇杷島小学校(653m)・鏡が沖中学校(676m)
設備 閑静な住宅街、1階高床式、LDK12畳以上、駐車場1台無料、専用庭、バストイレ別、追いだき機能付き、温水洗浄便座、都市ガス、洗濯機置場 室内、各居室照明、インターネット接続可、仲介手数料不要、予約可
入居時期 即入居可
取引態様 貸主
備考 給湯器新品入れ替え手配中です!
手数料負担割合/配分割合 貸主:0%   借主:100% / 元付:0%   客付:100%  
取り扱い会社

有限会社ひまわりネットワーク

新潟県柏崎市宮場町9番23号

情報登録日 2025/09/22 次回更新予定日 2026/02/16
  • 城東O貸家
    有限会社ひまわりネットワーク
  • この物件を問い合わせる/無料
  • TEL: 0257-22-0851 0257-22-0851

この物件の地図・周辺情報・行政情報

この物件の周辺情報・行政情報を詳しく見る
【周辺情報】
物件の近くにあるコンビニや銀行・学校など、アイコン付のマップで詳しく表示できます!
【行政情報】
水道料や下水道料・ガス料金など、暮らしに関係のある情報を表示しています。

担当取扱い店舗情報

取扱い店舗画像
有限会社ひまわりネットワーク
TEL: 0257-22-0851
所在地: 新潟県柏崎市宮場町9番23号
交通: 柏﨑駅南口から約950m(約12分)
営業時間: 平日9:00~17:00(土12:00まで)/定休日:日曜・祝日
免許番号: 新潟県知事(6)第4167号
所属団体名: (公社)新潟県宅地建物取引業協会 (一社)全国賃貸不動産管理業協会(全宅管理)
取引態様: 貸主
ホームページ: https://www.himawari-network.co.jp/