新潟県上越市大豆1丁目8番43号1F 事務所 66万円の物件情報

専有駐車場20台!山麓線沿いで目立つ立地のテナントです★

物件名
所在地
面積
間取り
所在階
築年数
方位
賃料
管理費等
共益費
敷金
保証金
礼金
種別
構造
【立地◎】春日山管財ビル 1F
新潟県上越市大豆1丁目8番43号1F
404.52㎡
(122.36坪)
-
1階
29年
-
66万円
55,000円/月
なし
360万円
なし
なし
事務所
鉄骨
  • 【立地◎】春日山管財ビル 1F
    株式会社 お不動さん
  • この物件を問い合わせる/無料
  • TEL: 025-520-8197 025-520-8197

物件画像

外観
間取り
物件画像
※画像クリックで拡大表示
外観
物件画像
※画像クリックで拡大表示
間取り
詳細画像
物件画像
エントランス(共用部分)
物件画像
内装
物件画像
内装
物件画像
内装
物件画像
インフォメーションカウンターのようにお使いいただけます♪
物件画像
キッチン
物件画像
内装
物件画像
スタッフ用の裏スペースに収納が!
物件画像
内装
物件画像
男女別トイレ!
物件画像
多目的用トイレもございます!
物件画像
Kidsルームにもできそうなお部屋です♪
物件画像
倉庫
物件画像
内装
物件画像
内装
物件画像
従業員用出入口!ポストもこちらに☆
物件画像
車通りの多い目立つ立地!!
物件画像
内装
物件画像
印刷用地図


物件概要

広~くて設備の整ったテナント!様々な用途に使えそうです(^▽^)/
物件コード 00200-100310
物件名 【立地◎】春日山管財ビル 1F
交通 駅:妙高はねうまライン 春日山駅から徒歩16分、バス:春日野一丁目から徒歩2分
所在地 新潟県上越市大豆1丁目8番43号1F
物件種別 事務所
総戸数 2戸
構造 鉄骨 階建 地上2階建
所在階/階数 1階/2階 号室 -
面積 404.52㎡ /122.36坪 方位 -
間取り -
賃料 66万円/月
消費税込み
管理費 55,000円/月
消費税込み
礼金 - 敷金 360万円
賃料の 6ヶ月分
ほか初期費用 - その他諸費用 賃料自動送金システム「スピードペイ」振込手数料として、毎月440円(税込)、利用更新料として1年毎に5,500円(税込)がかかります。
更新料 - 火災(家財)保険 -
共益費 - 町内費 -
駐車場
専有20台
バイク料金 -
鍵交換費 - 清掃料 -
保証審査事務手数料 2,200円
更新事務手数料 -
保証区分 保証会社+緊急連絡先
保証会社 区分:加入要
保証会社名:CIZ
ベーシックプラン(契約時のみの支払い、退去まで保証、保証更新料なし)
家賃保証金 550,550円
月額合計賃料の77%
連帯保証人 区分:不要
-
仲介手数料 660,000円
築年月 1997年5月(築29年)
利用制限 法人:可、ペット:相談、事務所利用:可
学校区 春日小学校(534m)・春日中学校(584m)
設備 1階、オートロック、24時間セキュリティー、光ファイバー、エアコン、男女トイレ別、即引き渡し可、給湯、駐車場あり
入居時期 即入居可
取引態様 仲介
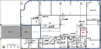
備考 ・間取り図の青色で囲ってあるエリアが専有部分になります。車寄せポーチから風除室、エントランスまでのエリアは共有スペースとなります。
・冬季間の駐車場内の除雪費用は、駐車台数で按分負担になります。
・専有駐車場が20台とお客様用駐車場(2Fと共用)があります。台数追加が必要な場合は、応相談とします。
・エアコンは2024年に入れ替え済みです。
・セコム設備あり。セキュリティ加入は任意ですが、借主負担となります。
・保証区分についての指定は無く、相談の上内容を決定します。

内覧やご不明点は、お気軽に025-520-8197(株)お不動さんまでお問い合わせください(^▽^)/
手数料負担割合/配分割合 貸主:-%   借主:100% / 元付:50%   客付:50%  
取り扱い会社

株式会社 お不動さん

上越市中央一丁目12番36号

情報登録日 2025/07/14 次回更新予定日 2026/05/16
  • 【立地◎】春日山管財ビル 1F
    株式会社 お不動さん
  • この物件を問い合わせる/無料
  • TEL: 025-520-8197 025-520-8197

この物件の地図・周辺情報・行政情報

この物件の周辺情報・行政情報を詳しく見る
【周辺情報】
物件の近くにあるコンビニや銀行・学校など、アイコン付のマップで詳しく表示できます!
【行政情報】
水道料や下水道料・ガス料金など、暮らしに関係のある情報を表示しています。
セブン-イレブン 上越春日野店(コンビニ)まで440m
原信 春日山店(スーパー)まで280m
トモエ薬局 春日野店(ドラッグストア)まで200m
かなざわ内科クリニック(病院)まで150m
めぐみ皮膚科(病院)まで230m
上田レディースクリニック(病院)まで450m
ふじわら耳鼻科(病院)まで360m
はやつ内科医院(病院)まで470m

※カメラのアイコンがある場合は、マウスをポイントするとその施設の画像がご覧いただけます。


担当取扱い店舗情報

取扱い店舗画像
株式会社 お不動さん
TEL: 025-520-8197
所在地: 上越市中央一丁目12番36号
交通: 直江津駅
営業時間: 8:30~17:30/定休日:日曜・祝日・第2土曜日・第4土曜日
免許番号: 新潟県知事(2)第5449号
所属団体名: 公社 新潟県宅地建物取引協会 上越支部
取引態様: 仲介
ホームページ: https://ofudousan.amebaownd.com/