新潟県長岡市蓮潟2丁目14番7号 一戸建て 1LDK 8万円の物件情報

静けさと利便性を兼ね備えた土手沿いの戸建て。1階ワンルームの伸びやかな空間に小上がり畳付き。周辺に買い物施設充実、千秋エリアへ車5分圏内、長岡北スマートICも利用しやすい立地です。

物件名
所在地
面積
間取り
所在階
築年数
方位
賃料
管理費等
共益費
敷金
保証金
礼金
種別
構造
長岡市蓮潟2貸家
新潟県長岡市蓮潟2丁目14番7号
125.03㎡
(37.82坪)
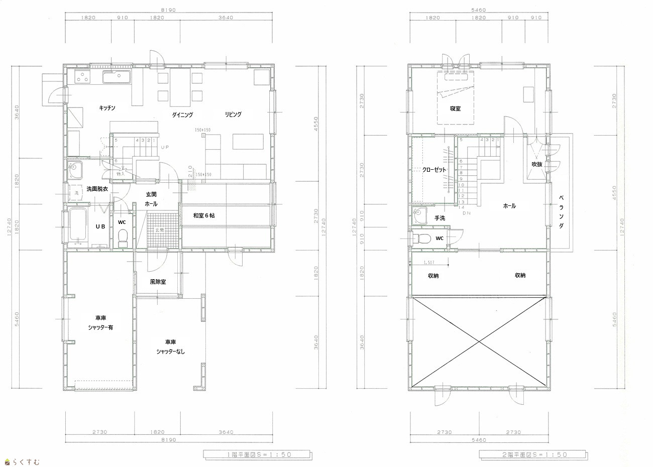
1LDK
-
30年
指定なし
8万円
なし
なし
16万円
なし
なし
アパート・マンション・一戸建て
木造
  • 長岡市蓮潟2貸家
    株式会社フォレス・タカダ
  • この物件を問い合わせる/無料
  • TEL: 0258-39-2919 0258-39-2919

物件画像

外観
間取り
物件画像
※画像クリックで拡大表示
外観
物件画像
※画像クリックで拡大表示
間取り
詳細画像
物件画像
リビング
物件画像
ダイニング
物件画像
2階ホール
物件画像
和室
物件画像
寝室
物件画像
和室
物件画像
収納
物件画像
収納
物件画像
バスルーム
物件画像
外観
物件画像
印刷用地図


物件概要

静けさと利便性を兼ね備えた土手沿いの戸建て。1階ワンルームの伸びやかな空間に小上がり畳付き。周辺に買い物施設充実、千秋エリアへ車5分圏内、長岡北スマートICも利用しやすい立地です。
物件コード 00125-100031
物件名 長岡市蓮潟2貸家
交通 バス:蓮潟から徒歩10分
所在地 新潟県長岡市蓮潟2丁目14番7号
物件種別 アパート・マンション・一戸建て
総戸数 1戸
構造 木造 階建 地上2階建
所在階/階数 - 号室 -
面積 125.03㎡ /37.82坪 方位 指定なし
間取り 1LDK (和室:6畳) (洋室:8)
LDK約18.5
賃料 8万円/月
管理費 -
礼金 -
敷金 16万円
ほか初期費用 - その他諸費用 消雪維持費(負担借主)消雪組合から納付連絡
更新料 - 火災(家財)保険 借主実費負担
共益費 - 町内費 借主実費負担
駐車場 屋根有1台・無1台 バイク料金 -
鍵交換費 - 清掃料 -
更新事務手数料 -
保証区分 連帯保証人+保証会社
保証会社 区分:加入要
保証会社名:その他 (ジェイリースまたは日本セーフティ)
各保証会社の規定・プランによる
連帯保証人 区分:要
65歳以下/就労者/本人確認資料・印鑑証明書(原本)の提出が可能な方
仲介手数料 88,000円
築年月 1996年1月(築30年)
利用制限 法人:可、学生:不可、単身者:不可、二人入居:可、シニア(60歳以上)入居:不可、子供:可、ペット:相談、楽器:不可、事務所利用:不可、ルームシェア:相談
学校区 上川西小学校(1,268m)・江陽中学校(1,730m)
設備 閑静な住宅街、日当り良好、デザイナーズ、LDK12畳以上、駐車2台可、専用庭、システムキッチン、2口コンロ、バストイレ別、追いだき機能付き、トイレ2か所以上、温水洗浄便座、暖房便座、エアコン、都市ガス、公営水道、下水、洗濯機置場 室内、脱衣所、玄関収納、ウォークインクロゼット、CATV、各居室照明、保証会社利用可能、ペット相談可、保証会社要加入
入居時期 2026年5月1日以降(修繕状況で変更あり)
取引態様 仲介
備考 ・ペット(小型犬or猫 2匹まで)・車庫の高さ、車幅、長さは事前に要確認、TV視聴はケーブルテレビをご契約いただきます(借主様直接申込)
手数料負担割合/配分割合 貸主:-%   借主:100% / 元付:50%   客付:50%  
取り扱い会社

株式会社フォレス・タカダ

新潟県長岡市摂田屋5-6-22

情報登録日 2026/03/26 次回更新予定日 2026/04/17
  • 長岡市蓮潟2貸家
    株式会社フォレス・タカダ
  • この物件を問い合わせる/無料
  • TEL: 0258-39-2919 0258-39-2919

この物件の地図・周辺情報・行政情報

この物件の周辺情報・行政情報を詳しく見る
【周辺情報】
物件の近くにあるコンビニや銀行・学校など、アイコン付のマップで詳しく表示できます!
【行政情報】
水道料や下水道料・ガス料金など、暮らしに関係のある情報を表示しています。
ファミリーマート 長岡蓮潟店(コンビニ)まで630m
ウオロク 蓮潟店(スーパー)まで580m
セブン-イレブン 長岡蓮潟店(コンビニ)まで720m
ローソン 長岡蓮潟店(コンビニ)まで760m
恵和こども園(学校)まで375m

※カメラのアイコンがある場合は、マウスをポイントするとその施設の画像がご覧いただけます。


担当取扱い店舗情報

取扱い店舗画像
株式会社フォレス・タカダ
TEL: 0258-39-2919
所在地: 新潟県長岡市摂田屋5-6-22
交通: 信越線〔宮内駅〕徒歩13分
営業時間: 8:30~17:30/定休日:隔週土曜・日曜日・祝/会社カレンダーによる
免許番号: 新潟県知事(8)第3591号
所属団体名: 新潟県宅地建物取引業協会 長岡支部
取引態様: 仲介
ホームページ: http://www.takada-arc.com