新潟県長岡市宝4丁目2ー13 倉庫・工場・その他 5.5万円の物件情報

物件名
所在地
面積
間取り
所在階
築年数
方位
賃料
管理費等
共益費
敷金
保証金
礼金
種別
構造
宝4丁目貸倉庫 3階
新潟県長岡市宝4丁目2ー13
184.64㎡
(55.85坪)
-
3階
30年
-
5.5万円
なし
なし
3ヶ月
なし
なし
倉庫・工場・その他
鉄骨
  • 宝4丁目貸倉庫 3階
    株式会社 棚橋不動産
  • この物件を問い合わせる/無料
  • TEL: 0258-31-1700 0258-31-1700

物件画像

外観
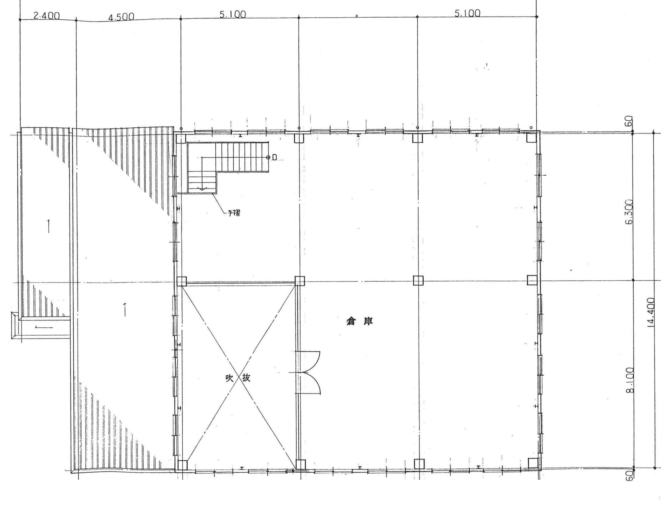
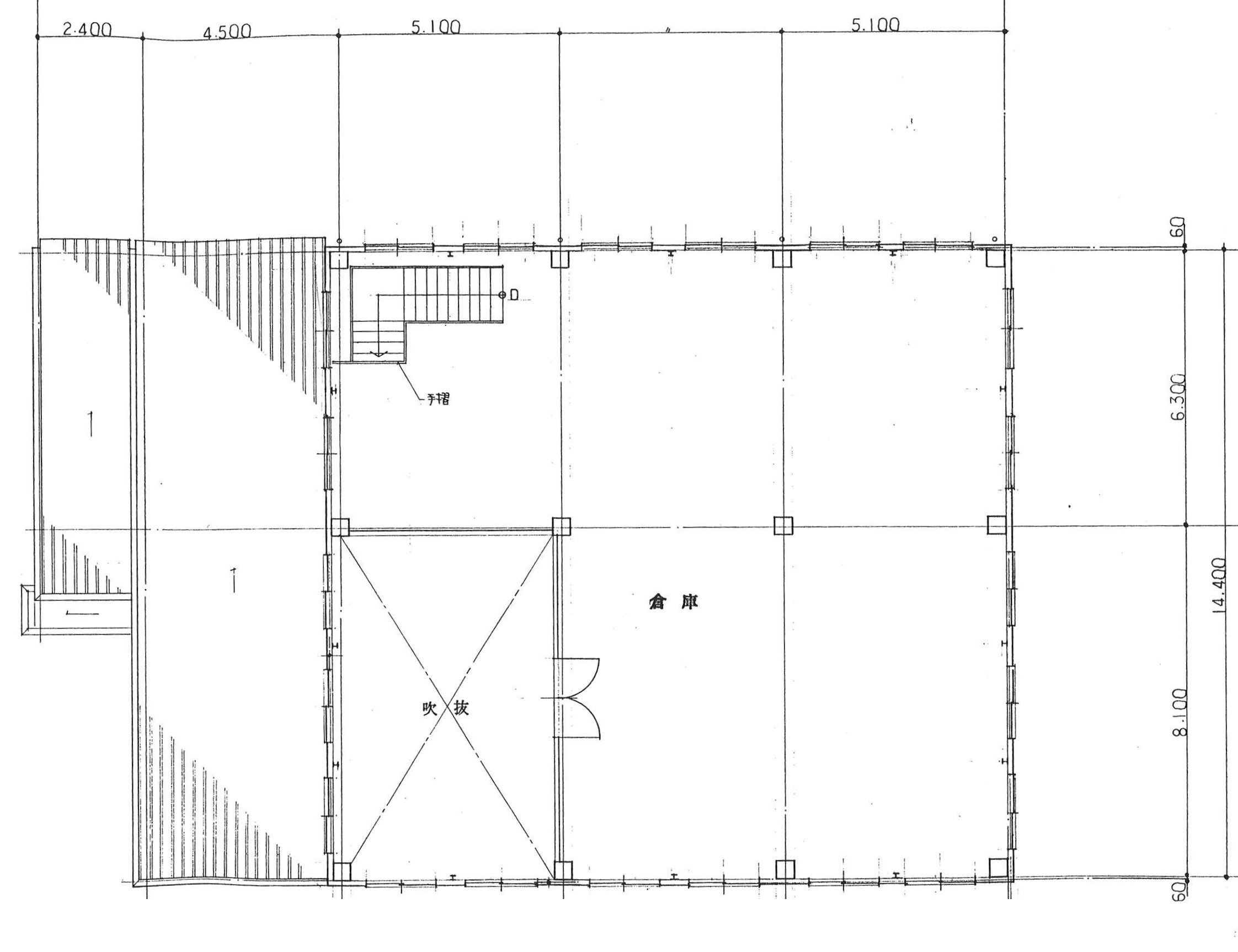
間取り
物件画像
※画像クリックで拡大表示
物件画像
※画像クリックで拡大表示
詳細画像


物件概要

物件コード 00117-100051
物件名 宝4丁目貸倉庫 3階
交通 バス:宝4丁目から徒歩2分
所在地 新潟県長岡市宝4丁目2ー13
物件種別 倉庫・工場・その他
総戸数 -
構造 鉄骨 階建 地上3階建
所在階/階数 3階/3階 号室 -
面積 184.64㎡ /55.85坪 方位 -
間取り -
賃料 5.5万円/月
管理費 -
礼金 -
敷金 3ヶ月
ほか初期費用 - その他諸費用 -
更新料 - 火災(家財)保険 あり
共益費 - 町内費 -
駐車場 - バイク料金 -
鍵交換費 - 清掃料 -
更新事務手数料 -
保証区分 -
保証会社 区分:-
-
連帯保証人 区分:-
-
仲介手数料 55,000円
築年月 1996年5月(築30年)
利用制限 -
学校区 黒条小学校・堤岡中学校
設備 -
入居時期 相談
取引態様 仲介
備考 3階の倉庫部分です。荷物は階段での上げ下ろしとなります。
手数料負担割合/配分割合 貸主:-%   借主:-% / 元付:-%   客付:-%  
取り扱い会社

株式会社 棚橋不動産

新潟県長岡市泉1-7-1

情報登録日 2019/12/09 次回更新予定日 2026/05/16
  • 宝4丁目貸倉庫 3階
    株式会社 棚橋不動産
  • この物件を問い合わせる/無料
  • TEL: 0258-31-1700 0258-31-1700

この物件の地図・周辺情報・行政情報

この物件の周辺情報・行政情報を詳しく見る
【周辺情報】
物件の近くにあるコンビニや銀行・学校など、アイコン付のマップで詳しく表示できます!
【行政情報】
水道料や下水道料・ガス料金など、暮らしに関係のある情報を表示しています。

担当取扱い店舗情報

取扱い店舗画像
株式会社 棚橋不動産
TEL: 0258-31-1700
所在地: 新潟県長岡市泉1-7-1
交通: 北長岡駅
営業時間: 8:30~17:30/定休日:土・日・祝
免許番号: 新潟県知事(5)第4749号
所属団体名: 全日本不動産協会 新潟県本部
取引態様: 仲介