新潟県柏崎市半田2-5-5 事務所 7.7万円の物件情報

令和7.4月フルリフォームのテナント!

物件名
所在地
面積
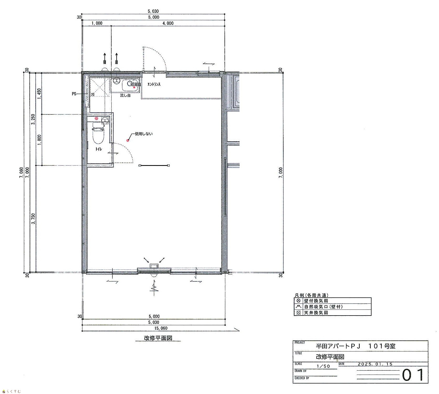
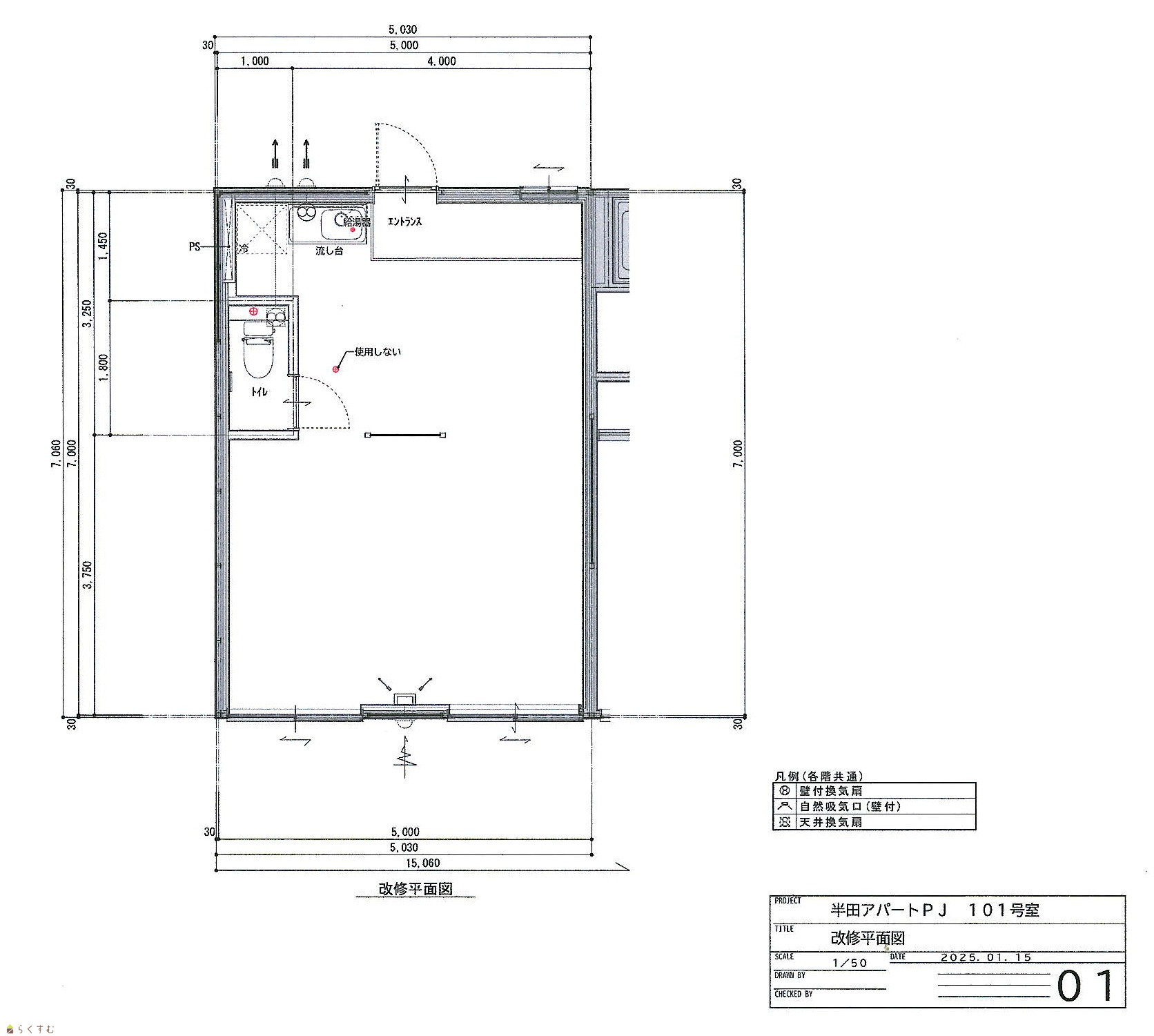
間取り
所在階
築年数
方位
賃料
管理費等
共益費
敷金
保証金
礼金
種別
構造
ハーフハウスハルヒ(テナント)
101号室
新潟県柏崎市半田2-5-5
35.3㎡
(10.67坪)
-
1階
37年
-
7.7万円
なし
あり
2ヶ月
なし
1ヶ月
事務所
軽量鉄骨
  • ハーフハウスハルヒ(テナント)
    株式会社 アーク不動産
  • この物件を問い合わせる/無料
  • TEL: 0257-22-6170 0257-22-6170

物件画像

外観
間取り
物件画像
※画像クリックで拡大表示
外観
物件画像
※画像クリックで拡大表示
間取り
詳細画像
物件画像
テナント
物件画像
キッチン
物件画像
トイレ
物件画像
エアコン
物件画像
入口
物件画像
テナント
物件画像
ネット環境
物件画像
地図画像


物件概要

物件コード 00079-100590
物件名 ハーフハウスハルヒ(テナント)
交通 駅:信越線 茨目駅から徒歩14分、バス:半田2丁目から徒歩2分
所在地 新潟県柏崎市半田2-5-5
物件種別 事務所
総戸数 6戸
構造 軽量鉄骨 階建 地上2階建
所在階/階数 1階/2階 号室 101号室
面積 35.3㎡ /10.67坪 方位 -
間取り -
賃料 7.7万円/月
管理費 -
礼金 1ヶ月
敷金 2ヶ月
ほか初期費用 - その他諸費用 -
更新料 77,000円
火災(家財)保険 要加入
共益費 5,000円
町内費 1,000円
別途
駐車場 11,000円
縦列
バイク料金 -
鍵交換費 - 清掃料 -
更新事務手数料 -
保証区分 保証会社のみ
保証会社 区分:加入要
保証会社名:ジェイリース
-
連帯保証人 区分:不要
-
仲介手数料 77,000円
築年月 1988年9月(築37年)
利用制限 法人:可、ペット:不可、楽器:不可、事務所利用:可、ルームシェア:不可
学校区 半田小学校(450m)・鏡が沖中学校(1,077m)
設備 1階、光ファイバー、エアコン、即引き渡し可、給湯、駐車場あり
入居時期 即入居可
取引態様 仲介
備考 -
手数料負担割合/配分割合 貸主:0%   借主:100% / 元付:50%   客付:50%  
取り扱い会社

株式会社 アーク不動産

新潟県柏崎市幸町3番26アークビル101

情報登録日 2025/05/27 次回更新予定日 2026/05/05
  • ハーフハウスハルヒ(テナント)
    株式会社 アーク不動産
  • この物件を問い合わせる/無料
  • TEL: 0257-22-6170 0257-22-6170

この物件の地図・周辺情報・行政情報

この物件の周辺情報・行政情報を詳しく見る
【周辺情報】
物件の近くにあるコンビニや銀行・学校など、アイコン付のマップで詳しく表示できます!
【行政情報】
水道料や下水道料・ガス料金など、暮らしに関係のある情報を表示しています。
セブン-イレブン 柏崎半田3丁目店(コンビニ)まで220m
ファミリーマート 柏崎城塚店(コンビニ)まで440m
クスリのアオキ 半田店(ドラッグストア)まで240m
JA新潟厚生連 柏崎総合医療センター(病院)まで980m

※カメラのアイコンがある場合は、マウスをポイントするとその施設の画像がご覧いただけます。


担当取扱い店舗情報

取扱い店舗画像
株式会社 アーク不動産
TEL: 0257-22-6170
所在地: 新潟県柏崎市幸町3番26アークビル101
交通: 柏崎駅
営業時間: 9:00~17:30/定休日:土・日・祝日*3月は無休営業致します
免許番号: 新潟県知事(7)第4045号
所属団体名: (公社)新潟県宅地建物取引業協会 柏崎支部
取引態様: 仲介
ホームページ: http://www.a-ku.co.jp