新潟県柏崎市堀1895-1 アパート 1K 3万円の物件情報

新潟工科大学まで徒歩10分

物件名
所在地
面積
間取り
所在階
築年数
方位
賃料
管理費等
共益費
敷金
保証金
礼金
種別
構造
グリーンハイツ
206号室
新潟県柏崎市堀1895-1
26.49㎡
(8.01坪)
1K
2階
28年
指定なし
3万円
2,000円/月
なし
1ヶ月
なし
なし
アパート・マンション・一戸建て
木造
  • グリーンハイツ
    株式会社 アーク不動産
  • この物件を問い合わせる/無料
  • TEL: 0257-22-6170 0257-22-6170

物件画像

外観
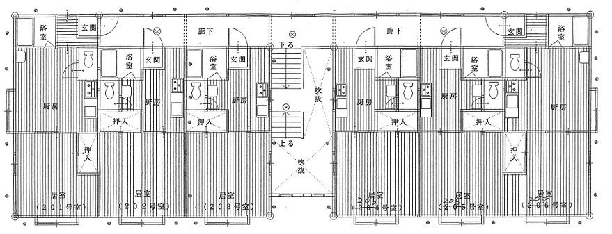
間取り
物件画像
※画像クリックで拡大表示
外観
物件画像
※画像クリックで拡大表示
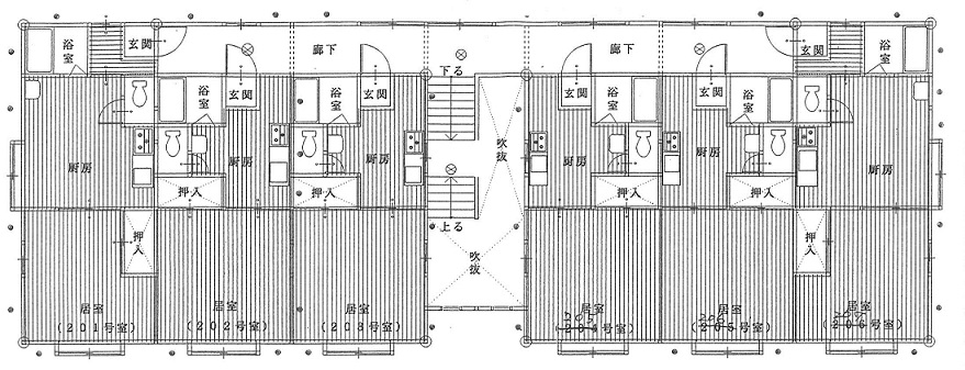
間取り
詳細画像
物件画像
キッチン
物件画像
洋室
物件画像
浴室
物件画像
トイレ
物件画像
クローゼット
物件画像
キッチン
物件画像
地図画像


物件概要

IHクッキングヒーター設置のオール電化物件です
物件コード 00079-100048
物件名 グリーンハイツ
交通 駅:JR茨目駅、バス:堀から徒歩2分
所在地 新潟県柏崎市堀1895-1
物件種別 アパート・マンション・一戸建て
総戸数 -
構造 木造 階建 地上2階建
所在階/階数 2階/2階 号室 206号室
面積 26.49㎡ /8.01坪 方位 指定なし
間取り 1K (洋室:8)
賃料 3万円/月
管理費 2,000円/月
礼金 -
敷金 1ヶ月
ほか初期費用 - その他諸費用 -
更新料 - 火災(家財)保険 16,000円
(2年分)
共益費 - 町内費 300円
駐車場 1,000円
バイク料金 -
鍵交換費 - 清掃料 -
更新事務手数料 11,000円
保証区分 連帯保証人のみ
保証会社 区分:指定なし
-
連帯保証人 区分:要
-
仲介手数料 33,000円
築年月 1997年3月(築28年)
利用制限 法人:可、学生:可、単身者:可、二人入居:不可、シニア(60歳以上)入居:可、ペット:不可、楽器:不可、事務所利用:不可、ルームシェア:不可
学校区 新道小学校(1,393m)・南中学校(925m)
設備 閑静な住宅街、バス停近く、最上階、敷地内ゴミ置き場、南向き、IHクッキングヒーター、バストイレ別、エアコン、オール電化、洗濯機置場 室内、玄関収納、クロゼット、BS端子・アンテナ、各居室照明、インターネット接続可、即入居可、保証会社利用可能、礼金不要、高齢者相談、学生向け、一人暮らし・学生向け、柏崎 大学、新潟産業大学生におすすめ、新潟工科大学生におすすめ、早期契約物件(柏崎の大学向け※柏崎のみ)
入居時期 即入居可
取引態様 仲介
備考 -
手数料負担割合/配分割合 貸主:0%   借主:100% / 元付:50%   客付:50%  
取り扱い会社

株式会社 アーク不動産

新潟県柏崎市幸町3番26アークビル101

情報登録日 2025/01/21 次回更新予定日 2026/01/04
  • グリーンハイツ
    株式会社 アーク不動産
  • この物件を問い合わせる/無料
  • TEL: 0257-22-6170 0257-22-6170

この物件の地図・周辺情報・行政情報

この物件の周辺情報・行政情報を詳しく見る
【周辺情報】
物件の近くにあるコンビニや銀行・学校など、アイコン付のマップで詳しく表示できます!
【行政情報】
水道料や下水道料・ガス料金など、暮らしに関係のある情報を表示しています。

担当取扱い店舗情報

取扱い店舗画像
株式会社 アーク不動産
TEL: 0257-22-6170
所在地: 新潟県柏崎市幸町3番26アークビル101
交通: 柏崎駅
営業時間: 9:00~17:30/定休日:土・日・祝日*3月は無休営業致します
免許番号: 新潟県知事(7)第4045号
所属団体名: (公社)新潟県宅地建物取引業協会 柏崎支部
取引態様: 仲介
ホームページ: http://www.a-ku.co.jp