新潟県長岡市城内町2丁目6-1 事務所 37.009万円の物件情報

長岡駅の目の前にあり、1階にコンビニが有ります。

物件名
所在地
面積
間取り
所在階
築年数
方位
賃料
管理費等
共益費
敷金
保証金
礼金
種別
構造
高野不動産駅前ビル
ABC号室
新潟県長岡市城内町2丁目6-1
222.47㎡
(67.29坪)
-
4階
54年
-
37.009万円
なし
266,613円
6ヶ月
なし
1ヶ月
事務所
鉄骨鉄筋コン
  • 高野不動産駅前ビル
    株式会社 高野不動産販売
  • この物件を問い合わせる/無料
  • TEL: 0258-34-7111 0258-34-7111

物件画像

外観
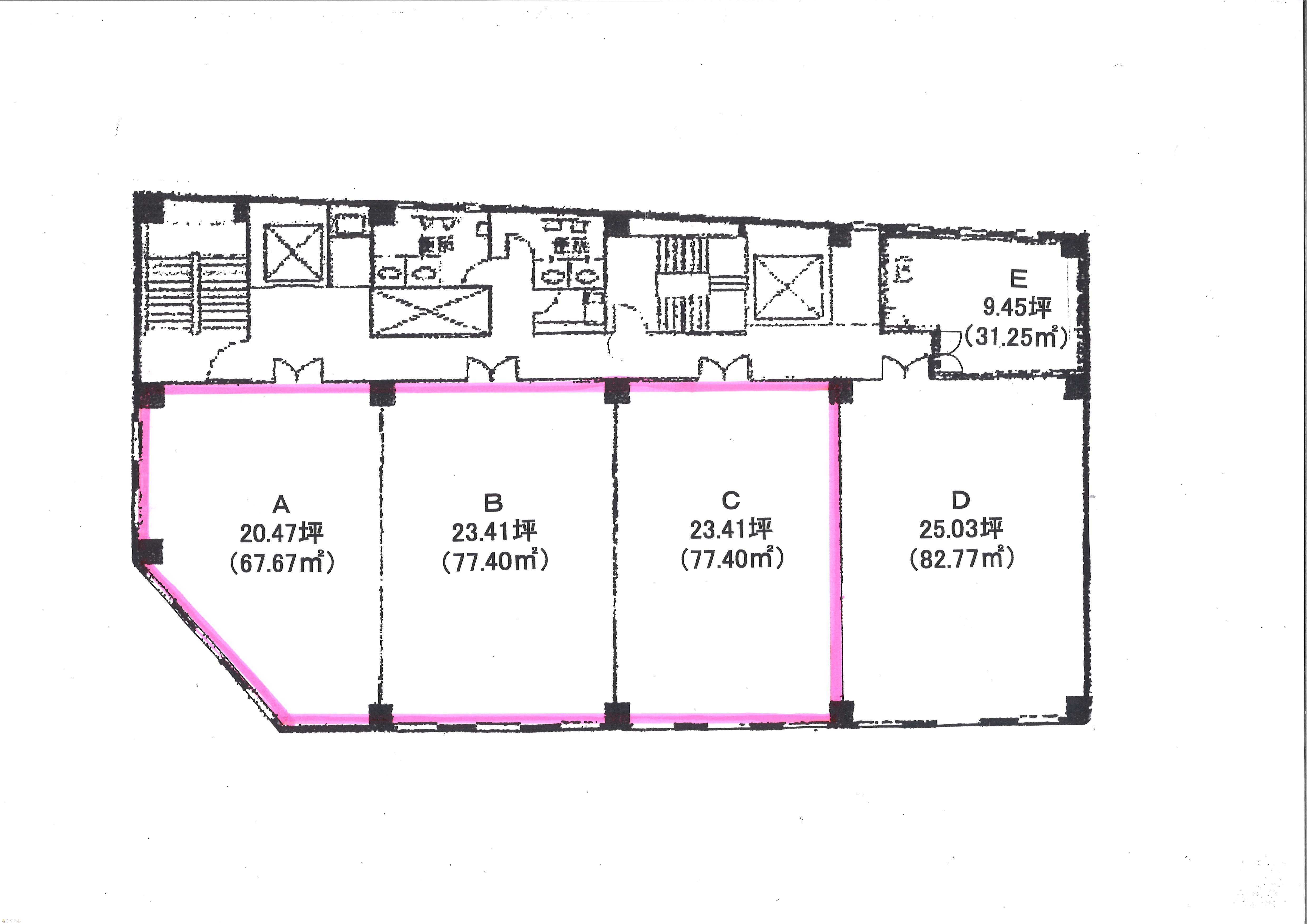
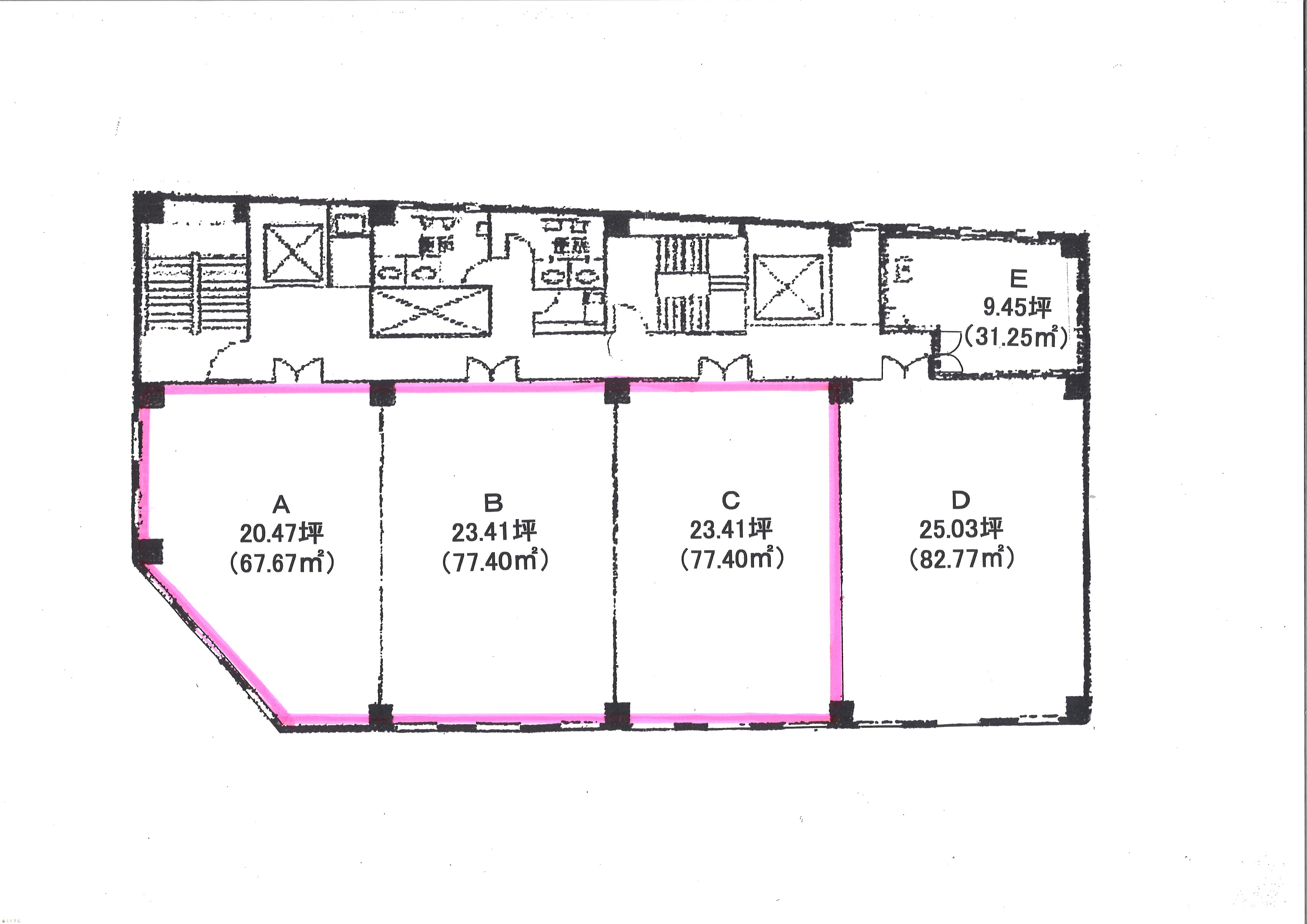
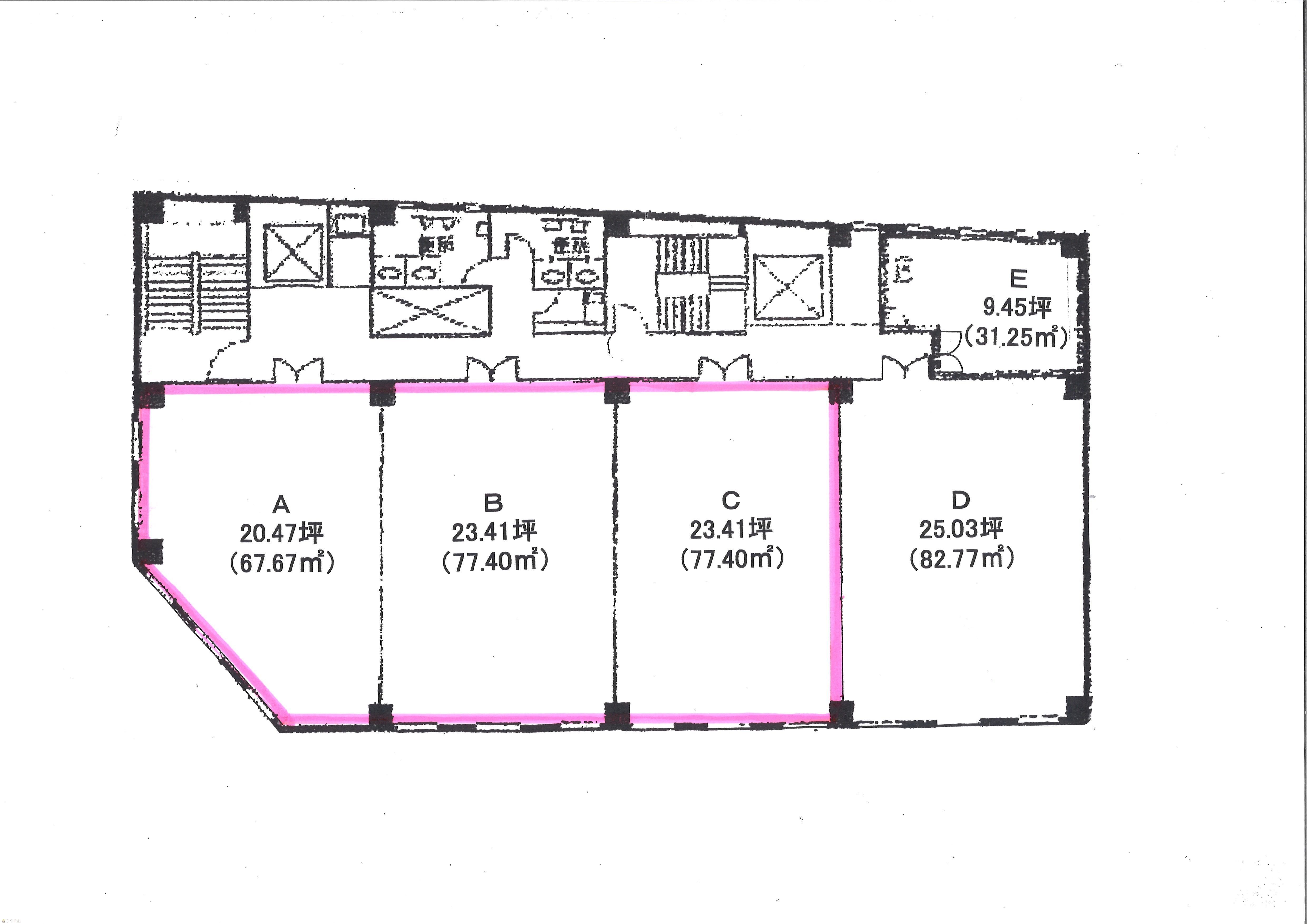
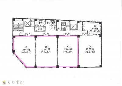
間取り
物件画像
※画像クリックで拡大表示
物件画像
※画像クリックで拡大表示
詳細画像
物件画像
A号室 20.47坪
物件画像
A号室
物件画像
A号室
物件画像
B号室 23.41坪
物件画像
B号室
物件画像
C号室 23.41坪
物件画像
C号室
物件画像
物件画像
1階
物件画像
4階
物件画像
物件画像
物件画像
物件画像
貨物用エレベーター


物件概要

物件コード 00041-100338
物件名 高野不動産駅前ビル
交通 駅:上越新幹線 長岡駅から徒歩2分
所在地 新潟県長岡市城内町2丁目6-1
物件種別 事務所
総戸数 25戸
構造 鉄骨鉄筋コン 階建 地上6階地下1階建
所在階/階数 4階/6階 号室 ABC号室
面積 222.47㎡ /67.29坪 方位 -
間取り -
賃料 37.009万円/月
管理費 -
礼金 1ヶ月
敷金 6ヶ月
ほか初期費用 保証会社加入:日本セフティー その他諸費用 -
更新料 - 火災(家財)保険 -
共益費 266,613円 町内費 -
駐車場 1台月額25,300円 バイク料金 -
鍵交換費 - 清掃料 -
更新事務手数料 -
保証区分 -
保証会社 区分:利用可
日本セフティー
連帯保証人 区分:指定なし
-
仲介手数料 370,095円
築年月 1972年3月(築54年)
利用制限 事務所利用:可
学校区 阪之上小学校・東中学校
設備 2階以上、エアコン、男女トイレ別、エレベーター、給湯、駐車場あり
入居時期 即入居可
取引態様 仲介
備考 A。B.C号室 各室の賃貸も可能です。
A号室:20.47坪
B号室:23.41坪
C号室:23.41坪
手数料負担割合/配分割合 貸主:-%   借主:-% / 元付:-%   客付:-%  
取り扱い会社

株式会社 高野不動産販売

新潟県長岡市柏町1丁目4-33

情報登録日 2022/02/09 次回更新予定日 2026/05/16
  • 高野不動産駅前ビル
    株式会社 高野不動産販売
  • この物件を問い合わせる/無料
  • TEL: 0258-34-7111 0258-34-7111

この物件の地図・周辺情報・行政情報

この物件の周辺情報・行政情報を詳しく見る
【周辺情報】
物件の近くにあるコンビニや銀行・学校など、アイコン付のマップで詳しく表示できます!
【行政情報】
水道料や下水道料・ガス料金など、暮らしに関係のある情報を表示しています。
ローソン 長岡駅大手口店(コンビニ)まで0m
吉田病院(病院)まで760m
富山第一銀行 長岡支店(銀行)まで110m
大光銀行 本店営業部(銀行)まで310m
第四銀行 長岡営業部(銀行)まで410m
北越銀行 本店(銀行)まで490m
長岡信用金庫 営業推進部(銀行)まで660m
長岡郵便局(郵便局)まで410m

※カメラのアイコンがある場合は、マウスをポイントするとその施設の画像がご覧いただけます。


担当取扱い店舗情報

取扱い店舗画像
株式会社 高野不動産販売
TEL: 0258-33-7711
所在地: 新潟県長岡市柏町1丁目4-33
交通: 長岡駅
営業時間: 9:00~17:30/定休日:土曜日・日曜日・祝日・お盆・年末年始
免許番号: 新潟県知事(1)第5568号
所属団体名: (公社)新潟県宅地建物取引業協会,(公社)首都圏不動産公正取引協議会,(公財)日本賃貸住宅管理協会
取引態様: 仲介
ホームページ: https://www.tknf.co.jp