殿町3丁目の飲食店舗
| 物件名
所在地 |
面積
間取り 所在階 |
築年数
方位 |
賃料
管理費等 共益費 |
敷金
保証金 礼金 |
種別
構造 |
|---|---|---|---|---|---|
| 殿町3丁目 紫紅ビル2F 202号室 新潟県長岡市殿町3丁目3番7号 | 26.23㎡ (7.93坪) - 2階 | 49年 - | 7.5万円 5,500円/月 看板電気代 | 3ヶ月 なし 1ヶ月 | 店舗 鉄筋コン |
| 物件コード | 00039-100089 | ||
|---|---|---|---|
| 物件名 | 殿町3丁目 紫紅ビル2F | ||
| 交通 | 駅:上越新幹線 長岡駅から徒歩10分、バス:大手通2丁目から徒歩4分 | ||
| 所在地 | 新潟県長岡市殿町3丁目3番7号 | ||
| 物件種別 | 店舗 | ||
| 総戸数 | - | ||
| 構造 | 鉄筋コン | 階建 | 地上2階地下1階建 |
| 所在階/階数 | 2階/2階 | 号室 | 202号室 |
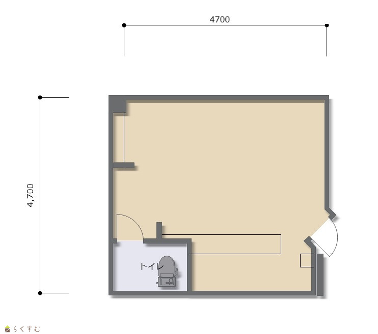
| 面積 | 26.23㎡ /7.93坪 | 方位 | - |
| 間取り | - | ||
| 賃料 | 7.5万円/月
|
管理費 |
5,500円/月
|
| 礼金 | 1ヶ月
|
敷金 | 3ヶ月
|
| ほか初期費用 | - | その他諸費用 | - |
| 更新料 | - | 火災(家財)保険 | 別途 要加入 |
| 共益費 |
1,100円
看板電気代 |
町内費 | - |
| 駐車場 | - | バイク料金 | - |
| 鍵交換費 | - | 清掃料 | - |
| 更新事務手数料 | - | ||
| 保証区分 |
保証会社のみ |
||
| 保証会社 |
区分:加入要
保証会社名:ジェイリース J-akinai |
||
| 家賃保証金 |
80,000円
初回保証料 1ヶ月 継続保証料(毎年)10% |
||
| 連帯保証人 |
区分:不要 - |
||
| 仲介手数料 |
82,500円
|
||
| 築年月 | 1976年6月(築49年) | ||
| 利用制限 | 学生:不可、単身者:不可、二人入居:不可、シニア(60歳以上)入居:不可、子供:不可、ペット:不可、楽器:不可、事務所利用:可、ルームシェア:不可 | ||
| 学校区 | 阪之上小学校(869m)・東中学校(1,439m) | ||
| 設備 | 2階以上、給湯 | ||
| 入居時期 | 相談 | ||
| 取引態様 | 仲介 | ||
| 備考 | *空調設備は冷房のみです。 *店舗内部は一部工事未了ですので、補修工事が必須となります。 |
||
| 手数料負担割合/配分割合 | 貸主:-% 借主:100% / 元付:50% 客付:50% | ||
| 取り扱い会社 |
ふどうさんの相談所 (ライフデザイン合同会社 イオン長岡店) 新潟県長岡市古正寺1-249-1イオン長岡店3F |
||
| 情報登録日 | 2025/10/25 | 次回更新予定日 | 2026/01/04 |
| TEL: | 0258-94-4370 | |
|---|---|---|
| 所在地: | 新潟県長岡市古正寺1-249-1イオン長岡店3F | |
| 交通: | 長岡駅 | |
| 営業時間: | 10:00~20:00/定休日:年末年始・特別日はお休みいたします | |
| 免許番号: | 新潟県知事(3)第5090号 | |
| 所属団体名: | 全日本不動産協会 新潟県本部 | |
| 取引態様: | 仲介 | |
| ホームページ: | http://life-dn.com | |