新潟県刈羽郡刈羽村割町新田830-1 事務所 15万円の物件情報

1階は事務所または倉庫として利用できます。

物件名
所在地
面積
間取り
所在階
築年数
方位
賃料
管理費等
共益費
敷金
保証金
礼金
種別
構造
割町新田事務所倉庫
新潟県刈羽郡刈羽村割町新田830-1
316.71㎡
(95.8坪)
-
2階
42年
-
15万円
なし
なし
3ヶ月
なし
なし
事務所
鉄骨
  • 割町新田事務所倉庫
    株式会社 ウェルネスホーム
  • この物件を問い合わせる/無料
  • TEL: 0258-29-0003 0258-29-0003

物件画像

外観
間取り
物件画像
※画像クリックで拡大表示
外観
物件画像
※画像クリックで拡大表示
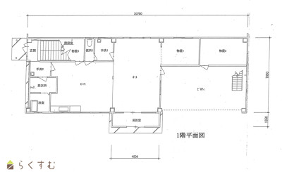
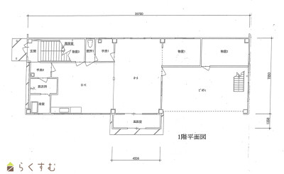
平面図1階
詳細画像
物件画像
間取り
物件画像
間取り
物件画像
事務所1
物件画像
事務所2
物件画像
トイレ
物件画像
2階和室1
物件画像
2階和室2
物件画像
外観2
物件画像
印刷用地図


物件概要

2階は倉庫としての利用がお勧めです。
物件コード 00031-100161
物件名 割町新田事務所倉庫
交通 駅:越後線 荒浜駅から徒歩22分、バス:割町新田集落センター前から徒歩2分
所在地 新潟県刈羽郡刈羽村割町新田830-1
物件種別 事務所
総戸数 -
構造 鉄骨 階建 地上2階建
所在階/階数 2階/2階 号室 -
面積 316.71㎡ /95.8坪 方位 -
間取り LDK (和室:10畳、6畳、6畳、6畳、8畳、8畳、6畳)
LDK約23畳
浴室1階に1か所・2階に1か所 トイレ各階に1か所 2階各室入口ドアは鍵付エアコン付 駐車場6~7台
賃料 15万円/月
管理費 -
礼金 -
敷金 3ヶ月
ほか初期費用 - その他諸費用 -
更新料 - 火災(家財)保険 要加入
共益費 - 町内費 -
駐車場 6~7台可無料 バイク料金 -
鍵交換費 - 清掃料 -
更新事務手数料 -
保証区分 連帯保証人のみ
保証会社 区分:指定なし
-
連帯保証人 区分:要
-
仲介手数料 165,000円
築年月 1983年12月(築42年)
利用制限 事務所利用:可
学校区 刈羽小学校(997m)・刈羽中学校(1,177m)
設備 駐車場あり
入居時期 即入居可
取引態様 仲介
備考 -
手数料負担割合/配分割合 貸主:-%   借主:100% / 元付:50%   客付:50%  
取り扱い会社

株式会社 ウェルネスホーム

新潟県長岡市大山1-8-5

情報登録日 2025/10/22 次回更新予定日 2026/05/16
  • 割町新田事務所倉庫
    株式会社 ウェルネスホーム
  • この物件を問い合わせる/無料
  • TEL: 0258-29-0003 0258-29-0003

この物件の地図・周辺情報・行政情報

この物件の周辺情報・行政情報を詳しく見る
【周辺情報】
物件の近くにあるコンビニや銀行・学校など、アイコン付のマップで詳しく表示できます!
【行政情報】
水道料や下水道料・ガス料金など、暮らしに関係のある情報を表示しています。

担当取扱い店舗情報

取扱い店舗画像
株式会社 ウェルネスホーム
TEL: 0258-29-0003
所在地: 新潟県長岡市大山1-8-5
交通:
営業時間: 9:30~18:00/定休日:日曜・祭日 土曜は不定休
免許番号: 新潟県知事(8)3794号
所属団体名: 公益社団法人 全国宅地建物取引業保証協会
取引態様: 仲介
ホームページ: http://www.wellnesshome.co.jp/