長岡市新保1丁目16-23 一戸建て 6DK 6.5万円の物件情報

新保地区 6DKの一軒家です。

物件名
所在地
面積
間取り
所在階
築年数
方位
賃料
管理費等
共益費
敷金
保証金
礼金
種別
構造
新保1『中島貸家』 6月より可能になります
1号室
長岡市新保1丁目16-23
153.45㎡
(46.41坪)
6DK
1階
56年
指定なし
6.5万円
なし
なし
2ヶ月
なし
なし
アパート・マンション・一戸建て
木造
  • 新保1『中島貸家』 6月より可能になります
    ㈱スタッフサイトウ不動産部
  • この物件を問い合わせる/無料
  • TEL: 0258-24-0623 0258-24-0623

物件画像

外観
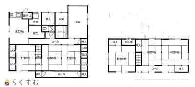
間取り
物件画像
※画像クリックで拡大表示
外観
物件画像
※画像クリックで拡大表示
間取り
詳細画像
物件画像
和室
物件画像
和室
物件画像
和室
物件画像
廊下
物件画像
台所
物件画像
キッチン
物件画像
室内洗濯機置き場
物件画像
浴室
物件画像
2階和室
物件画像
2階和室
物件画像
2階廊下
物件画像
玄関
物件画像
玄関
物件画像
トイレ
物件画像
洗面台
物件画像
地図画像


物件概要

インナー式ガレージ あります。
物件コード 00011-100160
物件名 新保1『中島貸家』 6月より可能になります
交通 駅:信越線 北長岡駅から徒歩15分、バス:新保1丁目から徒歩3分
所在地 長岡市新保1丁目16-23
物件種別 アパート・マンション・一戸建て
総戸数 -
構造 木造 階建 地上2階建
所在階/階数 1階/2階 号室 1号室
面積 153.45㎡ /46.41坪 方位 指定なし
間取り 6DK
追い焚き機能/シャワー
賃料 6.5万円/月
管理費 -
礼金 -
敷金 2ヶ月
ほか初期費用 - その他諸費用 -
更新料 - 火災(家財)保険 15,000円
加入の事
共益費 - 町内費 -
駐車場 - バイク料金 -
鍵交換費 - 清掃料 -
更新事務手数料 -
保証区分 連帯保証人+緊急連絡先
保証会社 区分:指定なし
-
連帯保証人 区分:要
-
仲介手数料 71,500円
築年月 1969年6月(築56年)
利用制限 ペット:不可、楽器:不可
学校区 富曾亀小学校(664m)・東北中学校(753m)
設備 駐車場1台無料、追いだき機能付き、暖房便座、洗面所独立、エアコン2基、都市ガス、洗濯機置場 室内、脱衣所、各居室照明、即入居可
入居時期 相談
取引態様 代理
備考 令和8年6月より入居可能になります
手数料負担割合/配分割合 貸主:-%   借主:100% / 元付:50%   客付:50%  
取り扱い会社

㈱スタッフサイトウ不動産部

新潟県長岡市蔵王2丁目4番17号

情報登録日 2026/04/07 次回更新予定日 2026/05/16
  • 新保1『中島貸家』 6月より可能になります
    ㈱スタッフサイトウ不動産部
  • この物件を問い合わせる/無料
  • TEL: 0258-24-0623 0258-24-0623

この物件の地図・周辺情報・行政情報

この物件の周辺情報・行政情報を詳しく見る
【周辺情報】
物件の近くにあるコンビニや銀行・学校など、アイコン付のマップで詳しく表示できます!
【行政情報】
水道料や下水道料・ガス料金など、暮らしに関係のある情報を表示しています。
ローソン 長岡新保店(コンビニ)まで210m
セブン-イレブン 長岡永田店(コンビニ)まで520m
良食生活館 川崎店(スーパー)まで730m
原信 新保店(スーパー)まで750m
原信 川崎店(スーパー)まで880m
まつむら第二歯科(病院)までm
大光銀行 新保支店(銀行)までm
しんきん(銀行)までm
長岡永田郵便局(郵便局)までm

※カメラのアイコンがある場合は、マウスをポイントするとその施設の画像がご覧いただけます。


担当取扱い店舗情報

取扱い店舗画像
㈱スタッフサイトウ不動産部
TEL: 0258-24-0623
所在地: 新潟県長岡市蔵王2丁目4番17号
交通: JR北長岡駅
営業時間: 8:30~17:30/定休日:第2・4土曜・日曜・祭日
免許番号: 新潟県知事(2)第5364号
所属団体名: 新潟県宅地建物取引業協会 長岡支部
取引態様: 代理
ホームページ: http://hokuetsu-fudousan.com