大島新町にある貸家です。
| 物件名
所在地 |
面積
間取り 所在階 |
築年数
方位 |
賃料
管理費等 共益費 |
敷金
保証金 礼金 |
種別
構造 |
|---|---|---|---|---|---|
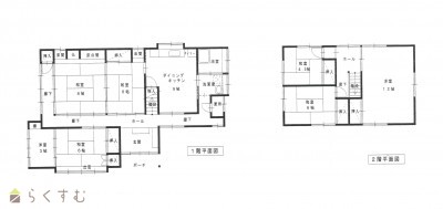
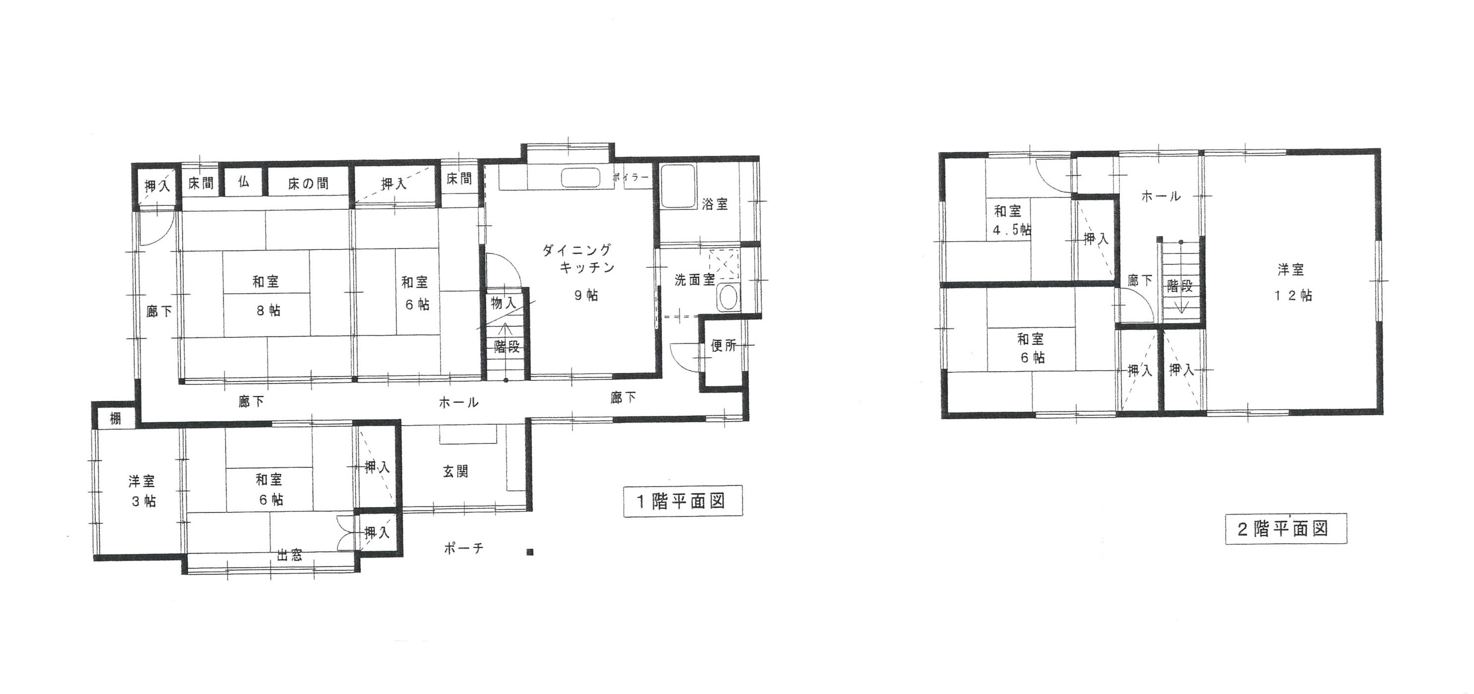
| 寺井貸家 -号室 新潟県長岡市大島新町5丁目5-1 | 141.7㎡ (42.86坪) 6DK - | 48年 指定なし | 6.5万円 なし なし | なし なし なし | アパート・マンション・一戸建て 木造 |
| 物件コード | 00004-100866 | ||
|---|---|---|---|
| 物件名 | 寺井貸家 | ||
| 交通 | 駅:上越新幹線 長岡駅から徒歩45分、バス:西長岡案内所前から徒歩4分 | ||
| 所在地 | 新潟県長岡市大島新町5丁目5-1 | ||
| 物件種別 | アパート・マンション・一戸建て | ||
| 総戸数 | - | ||
| 構造 | 木造 | 階建 | 地上2階建 |
| 所在階/階数 | - | 号室 | -号室 |
| 面積 | 141.7㎡ /42.86坪 | 方位 | 指定なし |
| 間取り | 6DK (和室:6畳、6畳、8畳、6畳、4.5畳) (洋室:12) DK9 |
||
| 賃料 | 6.5万円/月
|
管理費 | - |
| 礼金 | -
|
敷金 | - |
| ほか初期費用 | - | その他諸費用 | - |
| 更新料 | - | 火災(家財)保険 | 要加入 |
| 共益費 | - | 町内費 |
実費 |
| 駐車場 |
2台込み |
バイク料金 | - |
| 鍵交換費 |
27,500円
|
清掃料 | - |
| 更新事務手数料 | - | ||
| 保証区分 |
保証会社+緊急連絡先 |
||
| 保証会社 |
区分:加入要
保証会社名:ジェイリース ①Jフラット 初回保証料 月額の総賃料70%、継続保証料 月額1,200円 ②学生プラン 初回保証料 一律 2万円、継続保証料 月額1,000円 ③留学生 連帯保証人 学校、敷金 1月分 |
||
| 家賃保証金 |
45,500円
|
||
| 連帯保証人 |
区分:不要 - |
||
| 仲介手数料 |
71,500円
|
||
| 築年月 | 1977年3月(築48年) | ||
| 利用制限 | ペット:不可 | ||
| 学校区 | 大島小学校(216m)・大島中学校(318m) | ||
| 設備 | 閑静な住宅街、カーポートあり、駐車場2台無料、保証会社要加入 | ||
| 入居時期 | 2025年1月下旬予定 | ||
| 取引態様 | 仲介 | ||
| 備考 | 現況を優先します | ||
| 手数料負担割合/配分割合 | 貸主:-% 借主:100% / 元付:50% 客付:50% | ||
| 取り扱い会社 |
有限会社 五十嵐商事 新潟県長岡市三ツ郷屋2丁目5-23 |
||
| 情報登録日 | 2025/12/05 | 次回更新予定日 | 2025/12/23 |
|
ファミリーマート 長岡大島本町店(コンビニ)まで320m 原信 古正寺店(スーパー)まで690m 長岡西病院(病院)まで510m |
長岡信用金庫 大島支店(銀行)まで570m 長岡大島郵便局(郵便局)まで370m |
※カメラのアイコンがある場合は、マウスをポイントするとその施設の画像がご覧いただけます。
| TEL: | 0258-28-1414 | |
|---|---|---|
| 所在地: | 新潟県長岡市三ツ郷屋2丁目5-23 | |
| 交通: | 西長岡案内所バス停徒歩2分 | |
| 営業時間: | 平日9時~18時・土曜日10時~15時(3月休みなし)/定休日:日曜、祝祭日、年末年始(12/27~1/4) | |
| 免許番号: | 新潟県知事(14)1645号 | |
| 所属団体名: | 新潟県宅地建物取引業協会 長岡支部 | |
| 取引態様: | 仲介 | |
| ホームページ: | https://ikarashi-shouji.com/ | |