新潟県長岡市関原南2丁目4237 アパート 2DK 3.8万円の物件情報

関原のアパートです。

物件名
所在地
面積
間取り
所在階
築年数
方位
賃料
管理費等
共益費
敷金
保証金
礼金
種別
構造
第1コーポ関原
3号室
新潟県長岡市関原南2丁目4237
40.57㎡
(12.27坪)
2DK
2階
48年
指定なし
3.8万円
なし
なし
なし
なし
なし
アパート・マンション・一戸建て
木造
  • 第1コーポ関原
    有限会社 五十嵐商事
  • この物件を問い合わせる/無料
  • TEL: 0258-28-1414 0258-28-1414

物件画像

外観
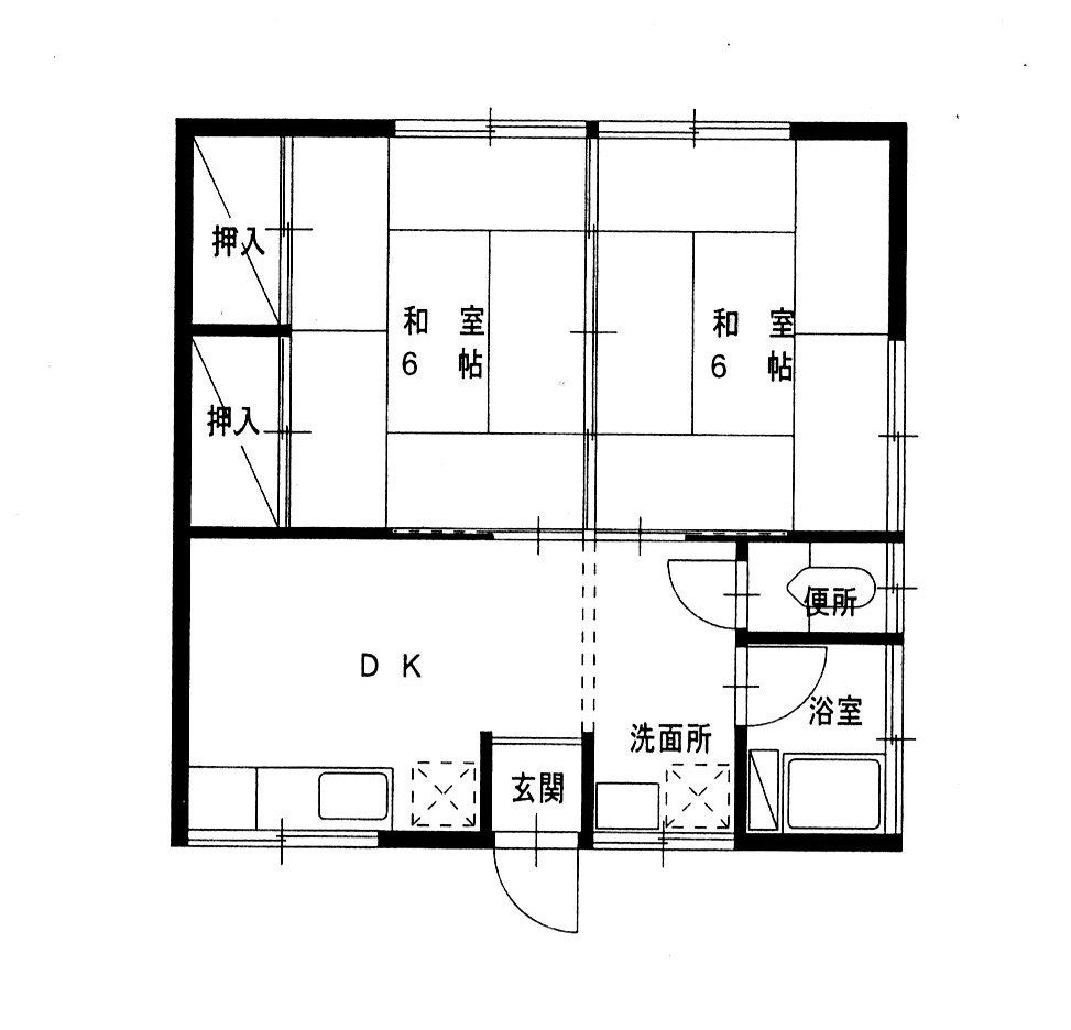
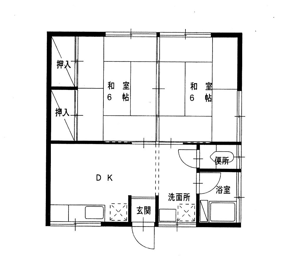
間取り
物件画像
※画像クリックで拡大表示
外観
物件画像
※画像クリックで拡大表示
平面図
詳細画像
物件画像
内観
物件画像
内観
物件画像
内観
物件画像
内観
物件画像
内観
物件画像
内観
物件画像
内観
物件画像
内観
物件画像
地図画像


物件概要

物件コード 00004-100518
物件名 第1コーポ関原
交通 駅:上越新幹線 長岡駅から徒歩98分、バス:関原南から徒歩7分
所在地 新潟県長岡市関原南2丁目4237
物件種別 アパート・マンション・一戸建て
総戸数 -
構造 木造 階建 地上2階建
所在階/階数 2階/2階 号室 3号室
面積 40.57㎡ /12.27坪 方位 指定なし
間取り 2DK (和室:6畳、6畳)
賃料 3.8万円/月
管理費 -
礼金 -
敷金 -
ほか初期費用 - その他諸費用 -
更新料 - 火災(家財)保険 要加入
共益費 - 町内費 実費
駐車場
付無料
バイク料金 -
鍵交換費 17,600円
清掃料 -
更新事務手数料 -
保証区分 保証会社+緊急連絡先
保証会社 区分:加入要
保証会社名:ジェイリース
①Jフラット 初回保証料 月額の総賃料70%、継続保証料 月額1,200円 ②学生プラン 初回保証料 一律 2万円、継続保証料 月額1,000円 ③留学生 連帯保証人 学校、敷金 4万円
家賃保証金 26,600円
連帯保証人 区分:不要
-
仲介手数料 41,800円
築年月 1978年3月(築48年)
利用制限 二人入居:可、ペット:不可、楽器:不可
学校区 関原小学校(719m)・関原中学校(195m)
設備 閑静な住宅街、最上階、駐車場1台無料、角住居、バストイレ別、温水洗浄便座、洗面所独立、都市ガス、洗濯機置場 室内、押入、各居室照明、即入居可、保証会社利用可能、礼金不要、敷金・礼金不要、保証会社要加入
入居時期 即入居可
取引態様 仲介
備考 シャワーは釜タイプになります。写真は参考写真になります。
手数料負担割合/配分割合 貸主:0%   借主:100% / 元付:50%   客付:50%  
取り扱い会社

有限会社 五十嵐商事

新潟県長岡市三ツ郷屋2丁目5-23

情報登録日 2025/11/21 次回更新予定日 2026/04/16
  • 第1コーポ関原
    有限会社 五十嵐商事
  • この物件を問い合わせる/無料
  • TEL: 0258-28-1414 0258-28-1414

この物件の地図・周辺情報・行政情報

この物件の周辺情報・行政情報を詳しく見る
【周辺情報】
物件の近くにあるコンビニや銀行・学校など、アイコン付のマップで詳しく表示できます!
【行政情報】
水道料や下水道料・ガス料金など、暮らしに関係のある情報を表示しています。
ローソン 長岡関原店(コンビニ)まで390m
原信 関原店(スーパー)まで540m
ウエルシア長岡関原店 (調剤薬局)(ドラッグストア)まで640m
大光銀行 関原支店(銀行)まで620m
長岡西郵便局(郵便局)まで340m

※カメラのアイコンがある場合は、マウスをポイントするとその施設の画像がご覧いただけます。


担当取扱い店舗情報

取扱い店舗画像
有限会社 五十嵐商事
TEL: 0258-28-1414
所在地: 新潟県長岡市三ツ郷屋2丁目5-23
交通: 西長岡案内所バス停徒歩2分
営業時間: 平日9時~18時・土曜日10時~15時(3月休みなし)/定休日:日曜、祝祭日、年末年始(12/27~1/4)
免許番号: 新潟県知事(14)1645号
所属団体名: 新潟県宅地建物取引業協会 長岡支部
取引態様: 仲介
ホームページ: https://ikarashi-shouji.com/